深基坑大坡度倒挂型钢锚喷支护技术

发表时间:2020/11/23   来源:《基层建设》2020年第22期   作者:丁鲁波 丛利 吉柳彧 高健 赵文杰 孙庆鑫 赵春
[导读] 摘要:本文基于北京大学第一医院城南院区工程实践,通过对该工程地质条件及主体与支护桩相对位置关系的分析,结合支护桩与土方开挖工序,探索应用深基坑大坡度倒挂型钢锚喷支护技术,结果表明该种支护结构体系可靠,基坑边坡稳定,施工难度低,安全系数高,节省工期和节约成本,为以后类似工程是设计和施工提供参考。
        中国建筑第八工程局有限公司  100000
        摘要:本文基于北京大学第一医院城南院区工程实践,通过对该工程地质条件及主体与支护桩相对位置关系的分析,结合支护桩与土方开挖工序,探索应用深基坑大坡度倒挂型钢锚喷支护技术,结果表明该种支护结构体系可靠,基坑边坡稳定,施工难度低,安全系数高,节省工期和节约成本,为以后类似工程是设计和施工提供参考。
        关键词:钻孔灌注桩;深基坑支护;优化;大坡度;倒挂;型钢;锚喷
        Abstract:This article is based on the engineering practice of a hospital in Beijing,through the analysis of the engineering geological conditions and the relative position relationship between the main body and the supporting pile,combined with supporting pile and earthwork excavation process,exploring the application of large slope hanging upside-down section steel bolting and shotcreting support technology for deep foundation pits,the results show that this kind of supporting structure system is reliable,the foundation pit slope is stable,the construction difficulty is low,the safety factor is high,and the system saves construction period and cost,it provides reference for the design and construction of similar projects in the future.
        Key words:bored pile;deep foundation pit support;optimization;large slope;hang upside down;section steel;bolting and shotcreting
        0引言
        随着我国经济的高速发展,城市建设快速推进,深基坑支护工程越来越普遍。传统支护形式,支护桩施工工艺流程一般为测量放线定位→埋设护筒→钻机就位→钻孔→成孔等,对于地下结构有外伸的项目而言,传统支护方式会导致增加土方开挖及回填,致使工期及成本有所增加。
        北京大学第一医院城南院区工程在地下室外墙阳角部分在-11.0m位置有外伸,与支护桩有交叉,无法施工结构外墙,优化原设计支护桩施工做法,采用倒挂型钢锚喷支护技术施工,可以在保证基坑安全的前提下,避免工期损失,同时提高了施工效率。
        1工程简述
        北京大学第一医院城南院区工程包含医疗综合楼、教学行政楼及附属用房,项目用地因新凤河穿过,因此项目划分为2个基坑,总用地面积为106318m2。其中医疗综合楼基坑最大开挖深度为14.27m,教学行政楼基坑最大开挖深度为14.67m,土方开挖总量为56万m3。基坑内支护形式涉及地下连续墙,三排、双排、单排支护桩(桩-锚式),混凝土内支撑、土钉墙等,基坑靠近大兴区4号线,部分支护形式位于地铁20m控制线以内及50m控制线以内。
        本工程位于北京市大兴区乐园路4号,东起兴丰大街,西至兴华大街,南临乐园路,北靠双高路。
        1.1工程水文条件
        依据地勘报告、水位观测成果报告,河道内水与地下水无互补关系,场地勘探期间钻探深度范围内未揭露地下水,因此本基坑开挖不用采取降水措施。
        1.2工程地质条件
        根据勘察报告显示,在40.00米深度范围内揭露的地层为①层人工堆积层,其余为第四纪冲洪积层(Qal+Pl)的粉土、砂土、粘性土、圆砾和卵石。根据时代成因及工程特性,自上而下共分为12个工程地质层。
        2支护方案选型分析
        2.1基坑特点
        本工程地下室二层,开挖深度为13.37m,属于二级基坑,该阳角部位基坑外土方夹杂回填生活垃圾,土体内摩擦力弱,基坑稳定性差,安全风险高。
        因此该阳角部位对于支护结构选型有特殊要求。
        2.2原设计支护桩施工方案及与主体结构相对位置关系
        1、原设计支护桩施工方案
        原设计该部位地面标高按42.0m考虑,槽底标高为28.63m,基坑开挖深度为13.37m,采用上部3m挡墙+排桩+锚索支护体系,护坡桩为A800@1600钢筋混凝土灌注桩,桩身及冠梁混凝土强度等级为C25,桩体设两道锚索,均为一桩一锚,桩长16.6m。
        锚杆张拉在锚固强度大于15MPa后进行,注浆材料及配比P.O 42.5水泥,0.5水灰比;预应力锚索:桩体设三道锚索,锚杆体直径150mm,一桩一锚,杆体配筋材质为7- A 5(1860)钢绞线,杆体注水泥浆水灰比宜为0.5,采用P.O 42.5水泥,采用多次补浆保证锚杆拉力,注浆液水灰比为0.5。
        基坑开挖为结构预留工作面≥1200mm。原设计支护结构示意图见图2.2-1。
        2、与主体结构相对位置关系
        地下室二层外墙阳角部分在-11.0m位置处有外伸筏板,与支护桩有交叉,无法施工结构外墙。支护桩与主体结构相对位置关系见图2.2-2。
 
        图2.2-1  原设计支护结构示意图    图2.2-2  桩与主体结构相对位置关系
        2.3方案比选
        因支护桩与地下室局部外伸外墙有交叉,同时需满足结构预留工作面≥1200mm,因此需对支护结构进行破除,同时为保证基坑边坡稳定及安全性,需对该阳角部位支护型式进行比选确认。
        1、土钉墙+预应力锚索方案:由于基坑开挖深度大,开挖深度达到11.65m,支护需要较大放坡,该阳角部位位于硬化料场及施工主要出入口位置,对于场地需求量大,同时该部位土质夹杂生活垃圾回填,土体内摩擦力小,土钉喷坡难度大且边坡稳定性差。因此,此方案不宜考虑。
        2、挡土墙+预应力锚索方案:该种方案提前将阳角部位土方清运完成,自下至上开始施工,首先开始进行下步冠梁施工,待强度满足要求后进行构造柱、圈梁施工,并进行挡墙砌筑,待其混凝土强度满足要求后,在进行上一步构造柱、圈梁施工,以此类推。该种施工方案施工周期长,影响项目工期,同时支护结构施工期间上部土体长期裸露无支护,对季节施工有要求,并且边坡失稳、交叉作业易导致安全事故发生,安全隐患大。因此,此方案不宜考虑。
        3、倒挂型钢锚喷支护施工方案:该方案为保证基坑安全,在0~-3.50m范围内采用1:0.5放坡土钉墙支护型式,剩余范围采用倒挂型钢锚喷施工支护,该施工过程可与土方开挖同步进行,未暴露基坑边坡,同时分步开挖分步支护有利于土体卸载、基坑稳定,材料为现场已有大宗材料易采购,人力与材料投入低,支护型式稳定,安全性高,实现了节约成本和节省工期的目标。因此,此方案为最优方案。
        综合以上分析,综合考虑本工程地质条件、开挖深度及现场场地等因素,确定使用倒挂型钢锚喷支护技术施工。
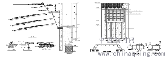
        2.4优化后倒挂型钢锚喷支护施工方案
        考虑该部位地质条件、开挖深度及平面布置场地,在0~-3.50m范围内采用1:0.5放坡土钉墙支护型式,剩余范围采用倒挂型钢锚喷施工技术。
        方案说明如下:
        1、-3.50m至-11.45m分三步从上至下开挖、截桩、施工,开挖标高分别为-6.50m、-9.50m、-11.45m。
        2、上部冠梁需与538#、544#支护桩连接,冠梁锚入该桩长度不小于35d。
        3、下部冠梁需与邻近支护段支护桩连接不少有1个桩,冠梁主筋需锚入邻近支护桩长度不小于35d。
        4、每步土开挖完成后,先铺设一层菱形钢板网,然后架设工字钢,之后在工字钢间铺设第二层钢板网。
        5、工字钢桩间采用C16横向加强筋,间距1m,与工字钢焊接连接,网喷8cmC20混凝土。
        6、537#-538#、543#-544#放坡段只设置腰梁与相邻腰梁连接,不设置预应力锚索。
        7、每步土之间工字钢进行焊接连接,要求满焊,焊接强度不低于母材强度。
        8、在分步开挖界面处架设一道腰梁,并设置预应力锚索,参见剖面图。
        9、工字钢型号采用2-25b。
        10、共设置两道冠梁,冠梁高度为700mm,上部冠梁顶标高-3.50m,下部冠梁顶标高为-11.45m,两冠梁间设置8道工字钢。
        11、为保证基坑边坡稳定,设置三道预应力锚索,标高分别为-3.85m、-6.50m、-9.50m。
        12、边坡除工字钢区域设置成品菱形钢板网,孔眼尺寸为100×5mm,厚度2mm,同原设计桩间护成品菱形钢板网型号。
        具体施工方案及参数见图2.4-1、2.4-2,支护效果图见图2.4-3。
 
        图2.4-1  支护方案剖面图图        2.4-2  支护方案平面图及大样图
 
        (a)倒挂型钢锚喷支护俯视效果图   (b)倒挂型钢锚喷支护正视效果图
        图2.4-3  倒挂型钢锚喷支护技术效果图
        3施工技术
        施工工艺如下:
        1、先行施工-3.50m以上土钉墙支护。
        2、开挖上部冠梁,钢筋绑扎、埋设第一步工字钢并施工第一道锚索,工字钢顶标高同冠梁钢筋上铁受力筋标高,之后完成冠梁混凝土浇筑,待混凝土具备相应强度后对锚索进行张拉。
        3、完成第一道预应力锚索后开挖土方至第二道锚索标高处,进行双层菱形钢板网片施工,并完成混凝土网喷;施工第二道锚索,架设腰梁并开始张拉。
        4、土方开挖至第三道锚索标高处,埋设第二步工字钢,其余同上述步骤。
        5、土方开挖至下部冠梁底,埋设第三步工字钢至下部冠梁内,进行坡面及冠梁施工。
        6、支护坡面按照1:0.2放坡。
        4结论
        本文通过对北京大学第一医院城南院区工程基坑阳角部位使用倒挂型钢锚喷施工支护技术,自上而下开始开挖、截桩、支护施工,经实践证明,该倒挂型钢锚喷支护技术是切实可行的,实现了基坑边坡稳定及基坑安全可靠,大大降低了对于施工工期及已有支护体系的影响,实现了节约施工成本的目标,该倒挂型钢锚喷施工支护技术为以后同类条件下基坑支护积累了经验,同时为同类条件下的设计和施工提供了新的成功工程实例。
        参考文献:
        [1]王勇,邓魏彬.倒挂井壁法竖井施工技术[J].价值工程.
        [2]张伟伟,何培玲.深基坑工程逆作法施工发展与展望[J].技术创新.
        [3]李峰,杨槐.垂直式预应力边坡支护“逆作法”施工技术[J].技术分析,2019(10).
        [4]刘跃军.逆作法施工在城市地下空间发开中的应用[J].建筑技术开发,2019(12).
        [5]邓弟平,李观波.浅谈“逆作法”施工对边坡支护的作用[J].岩土工程与地下工程.
        [6]董宏伟.建筑逆作法施工技术研究[J].施工技术,2019(4).
        [7]夏立松.大型深基坑逆作法施工技术研究[J].住宅与房地产,2017(9).
        [8]王洪新.建筑工程施工中逆作法施工技术的实践应用[J].建材装饰,2017(2).
        [9]颜勇,佟成龙.逆作法施工在深基坑工程中的应用[J].天津建设科技,2016(6).
投稿 打印文章 转寄朋友 留言编辑 收藏文章
  期刊推荐
1/1
转寄给朋友
朋友的昵称:
朋友的邮件地址:
您的昵称:
您的邮件地址:
邮件主题:
推荐理由:

写信给编辑
标题:
内容:
您的昵称:
您的邮件地址: