福建华电高砂水电有限公司  福建沙县  365050
        摘要:通过理论计算分析及实践探索检验,主轴密封可以采用工作密封间隙控制调整方式,进行主轴密封漏水量的调整,采用此方法调整后,由于主轴密封在运行中密封填料与密封面实际具有一定的间隙,可以改善密封填料工作环境,降低密封填料工作损耗,延长密封填料使用寿命。
        关键词:主轴密封;密封填料;间隙控制调整
        一、前言:
        高砂电站于1995年投产发电,总装机容量50MW,总计4台灯泡贯流式机组,主轴密封为传统的填料式密封结构,建厂至今主轴密封时有发生填料烧损及主轴密封漏水过大而被迫检修状况,因此有必要探索一条新的主轴密封装配调整的新方法,以适应现阶段主轴密封装配的工艺要求,确保主轴密封可靠安全运行。
        二、贯流式机组主轴密封基本结构
        
.png)
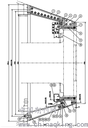
        图2-1主轴密封结构图
        1.主轴密封结构
        图2-1为高砂电站主轴密封结构图,工作密封基本组成构件为密封填料、隔环、密封调整压环,前端为检修围带密封。此结构为现行常用基本填料式密封结构。
        2. 工作密封各部件的作用
        密封填料:用于调整控制主轴密封漏水量,分为前端密封两道,后端密封两道。
        隔环:用于配置主轴密封润滑水,设置在主轴填料密封中部。
        密封调整压板:用于调整主轴填料密封,控制主轴密封漏水量满足运行要求。
        三、贯流式机组主轴密封现行装配调整状况
        1. 现行主轴密封装配调整工艺
        首先将主轴密封槽清理干净,然后将做好的两道主轴密封填料装入密封槽底部;其次装配好主轴密封隔环,再次装配好密封槽上部两道主轴密封填料,最后装配主轴密封压环。压环装配完成后,通过均匀的锁进压环调整螺丝,进行主轴密封填料适配度,适配度一般通过打开主轴密封润滑水,观察主轴密封漏水情况来确定,一般情况漏水量控制在20L/min—10L/min为宜,主轴密封压环的调节过程主要靠调节人员的经验来把握。
        2. 采用上述工艺装配主轴密封的运行状况
        笔者通过调查高砂电站主轴密封近10年的运行状况,通过上述主轴密封调整工艺,一般情况下能够保持1—2年的安全运行,之后基本需要结合一次C修进行填料更换。如果装配时主轴密封调整不当,将会引起主轴密封漏水过大或主轴密封填料烧损失效。
        四、贯流式机组主轴密封装配调整新方法探索及实践
        1. 主轴密封的作用
        主轴密封的作用主要是在机组运行时,确保主轴密封漏水量控制在设备允许范围内(一般主轴密封漏水量在25L/min—5L/min之间),且能保证设备安全连续运行。
        2. 主轴密封调整新方法探索
        理论依据:圆柱环形缝隙液体流量计算,由于轴向无相对运动,因此u0=0,只考虑静态即可。
        计算公式:πdδ3Δp/12µL
        d:圆柱直径,单位mm;
        δ3: 间隙,单位mm
        Δp:压力差,单位MPa
        L: 间隙长度,单位mm
        µ: 介质动力粘度,水取1
        高砂电站主轴密封输入具体参数,通过上述计算公式,可计算出不同的间隙理论计算流量值。
        
.png)
        从上表中可知不同间隙时的理论计算流量如下:
        间隙为0.5mm时,主轴密封漏水量为392.5ml/s即23.55L/min。
        间隙为0.4mm时,主轴密封漏水量为200.96ml/s即12.06L/min
        间隙为0.3mm时,主轴密封漏水量为84.78ml/s即5.09L/min
        间隙为0.2mm时,主轴密封漏水量为25.12ml/s即1.5L/min
        鉴于上述理论计算结果,可以采用工作密封间隙控制调整方式进行主轴密封漏水量的调整,由此笔者结合高砂电站4号机组C修,主轴密封填料更换之际进行了尝试,其调整方法如下:
        方法1.加垫法(适合于作业空间宽裕)优点是调整精度高,作业人员操作简便。
        首先将将主轴密封槽工作面清理干净,在密封工作面上配装一层0.5mm铁皮,然后按顺序分别装好密封填料及隔环,装好主轴密封压环,均匀的拧紧压环螺丝,然后退出压环,抽出0.5mm铁皮,用塞尺检查密封填料与工作面之间的间隙,可按8点均布进行测量,如果间隙在0.3mm—0.5mm之间即可,将压环从新装复至与主轴密封填料靠上即可,上好压环螺丝防松背帽,开启主轴密封润滑水,检查主轴密封漏水情况。
        方法2.计算控制调整法(适合于作业空间狭小)优点无需加垫,但是要进行理论计算,求出调节量。
        首先初步确定要控制的预留间隙δ,然后依据密封槽尺寸及密封填料尺寸计算出相对预留间隙的调节量,通过计算出的调节量进行压环的均匀调节,退出压环用塞尺检查调整间隙合格,上好压环螺丝防松背帽,开启主轴密封润滑水,检查主轴密封漏水情况。
        高砂电站通过上述方法调整后,主轴工作密封四周间隙为0.4mm,实测主轴密封漏水为¢50排水管的1/4。流道充水后检查主轴密封漏水量未变,机组开机运行,检查主轴密封漏水量正常,能确保设备安全运行。
        由于采用主轴密封工作间隙控制调整方式进行主轴密封漏水量的调整,主轴密封实际工作时,密封填料与密封面存在一定的间隙,因此改善了密封填料工作环境,并可较好的延长密封填料使用寿命。
        
.png)
        调整前主轴密封水漏水量
        
.png)
        调整后主轴密封水漏水量
        五、结论
        通过理论计算分析及实践检验的探索,主轴密封可以采用工作密封间隙控制调整方式,进行主轴密封漏水量的调整,采用此方法调整后,由于主轴密封在运行中密封填料与密封面实际具有一定的间隙,可以改善密封填料工作环境,降低密封填料工作损耗,延长密封填料使用寿命。
        作者简介:第一作者:杨冬韦,性别:男,职称:助理工程师,从事职业:水发电机械检修。
        第二作者:黄文粮,性别:男,职称:助理工程师,从事职业:水发电机械检修。