黄铁岩
        湖南大学设计研究院有限公司 410000
        摘要:建筑设计的主要工作,就是要解决建筑、人、环境的问题,尊重环境、改善环境,为人营造一个生态、绿色的建筑空间。人类大量的活动,均需在建筑空间中进行组织和安排。应着重考虑人的行为习惯,尊重人对空间的生理需求,把握人的心里感受。而不应片面的为满足规范的规定,为达到个性化的造型要求而去损失应有的功能空间需求,从而导致建筑设计的不人性化,作为当代建筑设计师,应多一份责任,多一份思考。
        关键词:建筑设计,人性化,责任,思考。
   伴随着中国城镇化的进程,建筑业的发展进入了一个新的高度,同时也迎来了一个新的时代,赋予了当代建筑师在建筑设计过程中新的责任和历史使命,建筑设计除了满足国家和地方的基本法律法规,符合适用、经济、美观外,更多的要从绿色、环保、生态、节能来考虑。
        按照可持续发展的原则,以人为本,建筑设计应站在使用者的角度,给与更多的人性化关怀,也体现建筑设计师的职业素养。然而,近来年,高强度、低收费、恶性竞争的行业环境,使我国一些建筑设计师出现急于求成、以达到规范要求、通过施工图审查为目的,而全然不顾实际使用需求的状况。于是,机械照搬、敷衍应付、东拼西凑、也就成了设计常态。设计,应有前瞻性,从以科学、发展、长远的眼光,认真分析事物发展的趋势,弄清规范的真正要义。满足规范是基本的设计行为,真正的建筑设计,应建立在规范的基础上,统筹合理布局,精心设计,人性化设计。在建筑设计的各个阶段,应做到整体通盘考虑,而不是后期为了满足规范要求,采取一些牵强的补救措施。
        以下为笔者对几点建筑设计过程中不人性化行为的思考。
        1.如图一:为某五层科创办公楼的首层门厅平面图,为满足楼梯间应在首层直通室外的规范要求,主体设计上在首层采用了扩大的封闭楼梯间,并顺利通过了施工图审查。从图中可以看出,为满足此规范要求,所有对着扩大封闭楼梯间的房间门、管井门均采用了乙级防火门,就连卫生间的门也采用了乙级防火门。暂且不考虑增加这么多扇防火门导致工程造价的增加,一扇乙级防火门的重量约30-35KG/M2,卫生间属于人员经常流动和出入的场所,门的开启频率比较频繁,试想,每次进出卫生间都需推开这么重的防火门,无论从生理、还是心理上来讲,都欠妥当,何况有一个卫生间还是无障碍专用卫生间。
        又如图二:为某六层办公楼的首层电梯厅平面图,亦是为满足楼梯间应在首层直通室外的规范要求。从图中可以看出,地下楼梯和地上楼梯间均能直通室外。此举虽然满足了消防的规范要求,但对于多层建筑来说,特别是处于建筑下部的一层和二层,平时的主要垂直交通组织还是以楼梯方式来解决。特别是贴临电梯厅的楼梯,是为平时主要的竖向通行通道。一楼的人员要经过室外,进入楼梯间,再到达二楼,此种设计,一方面不便于人员的管理,另一方面容易造成交通的迷失。对整体建筑的人员流线组织,行走习惯等均不太合理。
        规范的满足是个基本的保证,设计应在满足规范的基础上,更加将功能合理化,多多关注并考虑人的实际使用需求,尊重人在空间中的行为模式,多点人性关怀。
        
.png) 
         
                                图一                                图二
        
         2.如图三:为某四层小学教学楼的楼梯间剖面图,为了响应立面造型的统一开窗模式,楼梯间的中间休息平台直接顶着外墙窗户。小学教学楼中,楼梯间作为学生上下课的最主要垂直交通,此种做法导致楼梯间窗户无法正常开启,楼梯间内的采光通风很受影响,另一方面,窗户在休息平台处,处于落地窗位置,窗户玻璃易被碰撞而产生安全隐患。立面的开窗方式固然重要,可应在满足基本的功能需求的基础上,去整体协调立面造型,而不应一味的以此种简单粗暴的方式来解决。而应更多关注人的使用感受和空间体验,给予更多的人性化关怀。
.png)
                                图三
        
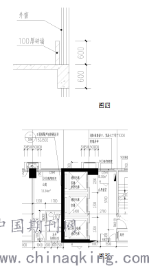
         3.如图四:为某高层住宅落地窗的上下窗槛墙的处理方式,为满足建筑外墙上、下层开口之间应设置高度不小于1.2m的实体墙的规范要求,设计在窗内边加设了100厚600高的实体墙(考虑到造价因素,未采用防火玻璃墙)。此种做法固然能满足规范要求来通过施工图审查,可从业主后期使用的角度来看,窗玻璃与600高实体墙之间存在空隙,时间一久便会积灰,关键还浪费了实际的住宅套内使用面积,估计业主在装修阶段就会将此实体墙敲掉,造成二次装修的浪费,同样达不到应有的防火效果。以此,建筑在设计过程中,应从实际使用的角度出发,而不是采取一些不切实际的牵强措施。
         又如图五:为某高层公寓的电梯与公寓相邻的处理方式,为满足电梯井道和机房不宜与有安静要求的用房贴邻布置,否则应采取隔振、隔声措施的规范要求,设计中在公寓与电梯之间采用了石膏板隔声墙体的构造。对于高层来讲,电梯是使用频繁的垂直交通设施设备,电梯井道内产生的振动、共振和撞击声对住户的干扰是很大的,虽然采取了构造措施能缓解一些影响,但从住户的实际居住体验来看是不乐观的,且双层隔声墙的构造占用了有效的室内空间面积,对于住户的得房率是不利的,也是不公平的。故建筑设计在前期方案阶段,应整体把握功能布局,避免此种有损业主利益的补救措施。
        
.png) 
        
        综上,要使建筑行业走上鼓励原创、重视质量的良性发展之路,应充分发挥建筑设计师的主观能动性,确保建筑设计师在工程设计中的主导作用,营造良好的建筑行业领域生态环境,建筑设计过程中出现的不人性化行为,归根到底,还是要加强设计人才的培养,打造一支专业素养过硬,能解决实际问题的建筑行业人才队伍。作为新时代的建筑设计师,应多一份责任,多一份思考。
        参考文献:
1.《建筑设计防火规范》GB?50016-2014(2018年版)
2.《住宅设计规范》GB50096-2011
3.《民用建筑设计统一标准》GB?50352-2019