湖北清江水布垭电站斜井引水压力钢管安装
赵云江
大唐观音岩水电开发有限公司 云南省昆明市 650100
摘要:由于斜井段压力钢管单节最大运输外形尺寸为4×7.272(m×m),单节最大运输重量28.432吨,斜井设计倾角60°。因此对于水布垭电站压力钢管安装来说,重中之重是斜井段压力钢管安装,如何安全、优质、高效地完 成斜井段压力钢管安装是一个极具挑战性的课题。
关键词:钢管 运输 斜井 对接 焊接
一、工程简介
水布垭电站引水隧洞采用一洞一机布置型式,共有1#—4#四条引水隧洞并平行布置,隧洞中心间距24m,引水隧洞由上平段、上弯段、斜直段、下弯段、下平段组成。钢管设计水头260m,上平段钢管直径φ8.5m,四条上平段钢管总长度548m;上平段锥管至下平段的全部钢管直径φ6.9m,压力钢管总安装工程量为9989.263吨。钢管采用16MnR低合金钢和JFE-HITEN610U2高强钢两种钢材。钢管斜直段下部分、下弯段、下平段采用JFE-HITEN610U2高强钢钢材,管壁厚度为32~48mm,其余钢管采用16MnR钢材,管壁厚度为28~36mm,压力钢管设有加劲环和阻水环,加劲环间距约为2.0m。
单条洞压力钢管立面如图Ⅰ所示。
.png)
图Ⅰ
斜井的倾角为60°,上、下弯管的转弯半径是24m,斜直段长139m。以下就斜井段钢管的洞内运输、对接、焊接等工序的临时设施设计进行简要的介绍。
二、基本施工顺序
利用40吨平板拖车将钢管运至6#施工支洞与压力钢管施工支洞的交叉口处,利用设置在该交叉口处的40t锚钩配合卷扬机卸车。把压力钢管施工支洞内的运输台车拖至被吊钢管下部,再把钢管安放在运输台车上,用链子葫芦加固牢靠,用8t卷扬机配合牵引滑轮组将钢管运至上弯管上游平坦处,接着切换至20吨卷扬机将钢管顺着上弯段、斜直段溜放至安装位置进行钢管的对接、焊接等工作。
斜井压力钢管一个安装段的施工顺序如图Ⅱ所示。
.png)
图Ⅱ
三、临时设施制安
1、轨道铺设
为了减少钢管溜放时的阻力及保证钢管在溜放过程中的平顺性,根据各洞钢管的安装顺序依次铺设轨道。轨道铺设间距3m,采用P38kg钢轨。轨道铺设完成后对其基础进行混凝土浇筑。
2、钢管运输台车制作
综合考虑钢管在平段及斜井段运输时重心变化后,决定采用凹心台车以降低钢管在运输过程中的重心,台车轮距设置为3m,自重3.3吨。该台车体型如图Ⅲ所示。
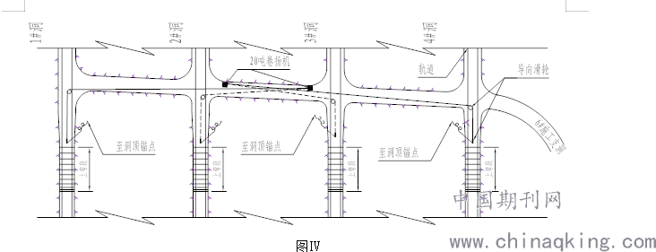
3、卷扬机及锚点布置
布置一台8吨卷扬机用于钢管的卸车及平段牵引。
20吨卷扬机布置在洞轴线右侧(顺水向),卷扬机绳头经一导向滑轮(位于洞轴线上,水平转角约80°)转向后沿洞轴线(顺水向)至钢管前的单轮滑车(位于洞轴线上,立向转角约60°)导向至洞顶锚点进行加固。
卷扬机及锚点布置如图Ⅳ所示。
.png)
图Ⅳ
为避免20吨卷扬机主绳在钢管溜放过程中与地面碰挂,沿上弯段地面等距布置9组托轮用以承托钢丝绳。
为检验20吨卷扬机及洞顶锚点,在投入使用前对整个牵引系统进行了荷载试验。
钢管的溜放如图Ⅴ所示。
.png)
在上弯段的运输过程中,由于钢管的倾斜角不断的变化,而牵引钢丝绳是固定不变。所以对钢管产生了一定的倾倒力矩,在向下运输的过程中,逐渐放长20吨葫芦,使其钢管向下倾倒。
在下弯段的运输过程中,倾倒力矩的则相反,所以,在下弯段的运输过程中,逐渐收紧20t葫芦,使其钢管向上倾倒。
斜井段的运输相对简单,运输过程中根据钢管的倾斜情况,适当调整20t葫芦即可。
4、对接、焊接台车制作
为了便于斜井段钢管对接、焊接及探伤工序的操作,设计、制作了钢管对接台车及焊接台车,其中焊缝探伤工序在焊接台车上完成。
钢管对接台车及焊接台车分别如图Ⅵ、图Ⅶ、图Ⅷ所示。
对接台车与焊接台车用四根安全链(单根允许抗拉12.7吨)相连形成一个台车组,其中对接台车与焊接台车之间可用5吨手拉葫芦进行调节。
台车组按钢管的安装顺序以4米/次的运行距离逐次逆水流方向移动。利用20吨卷扬机(绕双绳,许用拉力32吨)对台车组实施牵引。台车组在工作状态时用四块卡板锁在钢管上游管口,卡板与台车组之间用四根安全链相连。
小结:水布垭电站斜井压力钢管安装自2004年5月开工以来,已完成了近80%的工程量。其中1#、4#斜井段已全部安装完成。利用对接台车上内置顶杠进行压缝(取代以往压马压缝的工艺),对钢管母材不会产生任何损伤同时也节省了工作时间。斜井内大直径压力钢管安装速度也创造了0.7节/天的好成绩。实践证明上述临时设施在实际施工过程中特别是在安全保障、质量控制及进度控制等方面发挥了重要作用。