赵彦昶
上海金冠幕墙科技有限公司 上海市 200000
摘要:建筑幕墙行业是建筑领域含金量较高的产业之一,相应的,也具备了较高的技术含量。另外,由于建筑幕墙是建筑的外衣,需要保证建筑幕墙的安全性也要体现其美观、通透的特性,因此企业的核心竞争力往往在幕墙的设计研发领域。经过多年的飞速发展我国幕墙行业在世界上处于领先地位。本文将对临港冰雪世界项目功能性幕墙系统、框架幕墙系统及铝塑板幕墙系统的设计进行分析与总结,以供参考。
关键词:建筑幕墙工程;异型幕墙;幕墙设计;
1 前言:
近些年伴随着我国国民生活水平的日益提高和经济的高速腾飞,人们对现代建筑的要求不仅仅局限于方方正正的形状,在建筑师的新颖理念下,现代建筑的设计越来越贴近绿色环保,功能越来越多样化,因此建筑幕墙的产品越来越多样化,市场需求引领着幕墙行业向着技术创新和更多元化的方向发展,所以我是很看好未来建筑幕墙行业的前景的。因此建筑幕墙作为现代建筑不可或缺的一部分,为了保证建筑幕墙的安全、美观、通透、环保的特性,幕墙也一定会向技术创新和更多元化的方向发展。1983年北京长城饭店工程是我国首次使用幕墙的工程,幕墙行业在我国经过了三十多年的积累和发展,不断融合中国特色,不断融合创新理念,幕墙行业已经走到世界前列。
2 工程概况
临港冰雪世界项目位于上海市浦东区临港南汇新城,银飞路杞青路交叉口,紧邻滴水湖。临港冰雪世界项目以商业和文化娱乐功能为主,本项目建成后将是世界最大的室内滑雪场,主要由室内外滑雪场、精品酒店、滑雪场与精品酒店连通区域金属板吊顶及金属板包柱、通往南区的连廊、水乐园、度假酒店、水乐园及度假酒店连通区域金属板吊顶及金属板包柱组成。为适应内外部滑道的空间需要,滑雪场东北高,西南低。两栋酒店中18层的为精品酒店,而度假酒店为15层,另外雪乐园层高为6层,水乐园层高为4层,建筑总体高度为80米,幕墙总建筑面积约12.9万平方米。
本项目主要由框架玻璃幕墙系统、铝塑板幕墙系统、全玻幕墙系统等组成。其中框架玻璃幕墙系统主要分为:FSA-塔楼标准框架玻璃幕墙系统;FSB-首层标准框架玻璃幕墙系统;FSC-首层跨层框架玻璃幕墙系统;FSD-塔楼出屋面及转角菠萝面框架玻璃幕墙系统;FSE-竖向条状框架玻璃幕墙系统等等。铝塑板幕墙系统主要分为:FSH-主楼菠萝面铝塑板幕墙系统;FSJ-南北地块连廊铝塑板幕墙系统;FSK-吊顶及包柱铝塑板幕墙系统;FSL-屋顶缆车房铝塑板幕墙系统。其它幕墙主要为:FSG-首层玻璃雨棚系统;FSI-全玻幕墙系统;FSN-屋面挡风墙铝板幕墙系统。
3 幕墙设计
随着幕墙行业不断的创新,不断的发展,人们对于幕墙各方面的要求也越来越高,本工程基本采用框架式幕墙,框架式幕墙设计方案简洁,能够承受较大安装误差,安装方式灵活,加工工艺较为成熟,维修相对容易,往往成本也比较低。但是由于框架式幕墙所有组件需要现场安装,所以现场管理以及质量控制工作十分巨大。
?3.1 FSA-塔楼标准框架玻璃幕墙系统
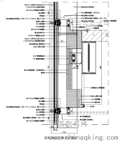
本项目中FSA-塔楼标准框架玻璃幕墙系统主要用于精品酒店与度假酒店的大面直面位置,本系统为半隐框系统,竖向立柱与斜向横梁为明框系统,横向横梁为隐框系统,竖向装饰线条与斜向装饰线条宽度均为70mm,横向隐框胶缝为15mm,幕墙框架铝龙骨采用横纵斜向交错形式,横梁立柱整体成米字型,大面采用6HS+1.52PVB+6HS+12Ar+8TP夹胶中空(Low-E)超白玻璃(暧边处理),玻璃呈三角形或梯形。
.png)
此系统玻璃幕墙标准层高跨度为3900mm,竖向龙骨采用粉末喷涂的铝合金明框立柱,上下两跟立柱间采用铝合金套芯连接,上下两跟立柱连接处留有适当的伸缩余量,以适应相应变形。横向标准分格为2250mm,横向龙骨采用粉末喷涂的铝合金隐框横梁,斜向龙骨采用粉末喷涂的铝合金明框横梁。明框横梁与隐框横梁均为闭腔横梁,明隐框横梁与立柱在横梁后口连接方式相同,均采用6mm厚铝合金角码通过两颗M6不锈钢螺栓组连接固定,其中6mm厚铝合金角码材质为6061-T6;而横梁立柱在前口的连接方式则略有不同,明框斜向横梁前口飞机头伸入立柱前端,通过ST4.8×38不锈钢盘头自攻钉与立柱相连防止横梁倾覆,隐框横梁与立柱前口的连接则是通过Z字型铝合金连接件,连接件的材质为6061-T6,连接件通过4颗M5不锈钢机制螺钉连接横梁与立柱,并起到防止横梁倾覆的作用。
斜向明框横梁与立柱连接方式
横向隐框横梁与立柱连接方式
立柱横梁连接方式竖剖
本系统横梁立柱安装方式简单便于现场施工,在测量放线之后现场可以先将立柱上墙,预先在横梁后口放入6mm厚角码,从前端将横梁推入两根立柱之间,调整横梁位置后安装不锈钢螺栓组,完成这些工序后再扣上横梁后口扣盖,最后分别完成两种横梁在立柱前口的安装工序。这样使得标准系统外观简洁,方便拆卸、更换及维修。
.png)
本项目中FSC-首层跨层框架玻璃幕墙系统位于裙楼跨层位置,本系统立柱为明框系统,横梁为隐框系统,竖向装饰线条宽度为70mm,横向隐框胶缝为15mm。由于此位置主体结构跨层挑空,跨层立柱整体高度为7.7米,且立柱在室内可视,经过计算之后立柱采用210×70×5mm直角钢立柱,直角钢立柱表面处理方式为氟碳喷涂,钢立柱上墙件采用的是8mm厚热镀锌钢转接件,通过M12不锈钢螺栓组将钢立柱与钢转接件连接,为了防止摩擦引起的噪音在钢立柱与转接件之间垫有2mm厚防噪音垫片,转接件焊接于预埋件上,其上设置长孔,满足现场调节误差的要求。横梁与FSA系统横向隐框横梁相同,横梁与立柱之间采用6mm厚不锈钢连接件连接,连接件通过两颗M6不锈钢螺栓组与一颗ST4.8×16不锈钢盘头自攻钉连接固定,连接件与横梁前壁通过两颗M5*16mm不锈钢机制螺钉相连防止横梁倾覆。本系统玻璃最大分格尺寸为W1500mm×H 3700mm,单片玻璃面积超过了4平方米,由于面积较大根据规范要求使用6HS+1.52PVB+6HS(Low-E)+12Ar+6HS+1.52PVB+6HS双夹胶中空超白半钢化玻璃(暧边处理)。
FSC-首层跨层框架玻璃幕墙效果图
?3.3 FSD-塔楼出屋面及转角菠萝面框架玻璃幕墙系统
本项目中FSD-塔楼转角及出屋面菠萝面框架玻璃幕墙系统位于塔楼各转角和出屋面位置。本系统为竖向立柱与斜向横梁为明框系统,横向横梁为隐框系统,竖向装饰线条与斜向装饰线条宽度均为70mm,横向隐框胶缝为15mm,本系统横梁立柱均采用钢龙骨,立柱采用160×70×5mm氟碳喷涂钢方管,明框斜向横梁采用120×70×5mm氟碳喷涂钢方管,隐框横向横梁采用100×70×5mm氟碳喷涂钢方管,在所有室内可视位置钢龙骨采用直角钢管,不可视位置则为普通标准钢管。幕墙整体效果为菠萝面,横梁立柱整体为米字型,大面采用6HS+1.52PVB+6HS+12Ar+8TP夹胶中空(Low-E)超白玻璃(暧边处理),玻璃呈三角形或梯形。
.png)
在方案设计阶段,为了保证幕墙最终的外观效果与建筑师要求一致,我们在完成系统方案和标准节点绘制之后,先将菠萝面幕墙外轮廓表皮通过三维模型建立出来,通过菠萝面幕墙外轮廓表皮往内推得到龙骨的完成面,通过此建立幕墙龙骨框架,之后再套入工程建筑结构,依照三维模型制作龙骨上墙转接件。待现场安装完龙骨实际三维复测时发现有部分龙骨发生偏位,其中部分龙骨偏移会导致面材无法正常安装,之后我根据现场龙骨的返尺数据调整三维模型,依照最终三维模型完成面材玻璃的下料。
.png)
本项目中FSH-主楼菠萝面铝塑板幕墙系统主要用于滑雪场与水乐园塔楼标准层各立面。因为铝塑板完成面与主体结构距离较远,且不是固定尺寸,所以整体幕墙结构采用钢桁架形式,钢桁架中里侧竖向龙骨采用200×200×8mm镀锌钢方管,200×100×8mm镀锌钢方管则作为外侧竖向龙骨,而横向通长龙骨和两根竖龙骨之间的斜撑都采用200×100×10mm镀锌钢方管。面板釆用4mm氟碳辊凃铝复合板,材质5005-H14。幕墙采用开缝处理,横向密拼接缝,接缝宽为2mm,斜向接缝宽度为20mm,铝塑板内衬1.5mm粉末喷涂防水铝单板。铝复合板四边折边开槽处理,铝复合板四边折边采用铝型材加强,与铝框组成一个整体,铝框既可以对面板起到加强作用,又可以采用螺钉直接将铝型材框固定在龙骨上。
.png)
这两年国家一直在推行节能减污,绿色建筑,为了响应国家政策,本项目从选材等方面进行了优化:主要的幕墙玻璃配置为6HS+1.52PVB+6HS(Low-E)+12Ar+8TP夹胶中空超白玻璃(暧边处理),根据玻璃厂家提供的参数,该种玻璃的K值为1.475W/(m2.k),遮阳系数SC= 0.392。经过计算后得出幕墙透明部分U值为1.95 W/(m2.k),幕墙热工性能达到6级标准(2>K≥1.5);0.344是幕墙的遮阳系数,遮阳系数等级达到6级标准(0.4≥SC>0.3)。
?3.6 幕墙防雷性能设计
本项目的建筑防雷等级为二类防雷。本项目幕墙防雷体系分为防直击雷体系和防侧击雷体系。幕墙防直击雷体系:菠萝面出屋面钢架及屋顶女儿墙压顶铝板与主体防雷带进行可靠连接,每块压顶铝板与主体防雷带有两处可靠连接。幕墙防侧击雷体系:在主楼35米(9层)以上位置,每两层(7.8米)布一圈直径为12mm的通长圆钢作为均压环,形成每两层(7.8米)的水平网格线;而竖向网格线则布置在建筑立面轴线上(两个相邻轴线间最大距离为9m),这样的布置防雷网格线小于10m*10m。
4 结束语:
伴随着科技和信息的高速发展,现代建筑也在不断前进,建筑外观也越来越复杂越来越新颖,复杂的外观也使建筑幕墙设计和施工的难度不断增加。现在只有通过不断提高的幕墙设计水平,来实现更加新颖的建筑外观,通过设计优化幕墙内部构造,来降低幕墙的施工难度。
参考文献
[1] 建筑防雷设计规范(GB 50057-2010)[S].北京:中国计划出版社,2010.
[2] 刘伟. 浅谈建筑幕墙[J]. 建筑工程技术与设计, 2017, 000(025):2654-2654,2663.
[3] 谢洪伟. 幕墙结构的分类及特点[J]. 建筑知识:学术刊, 2011, 000(007):P.145-145.