赵丹丹
        江苏巨光建设有限公司?江苏 淮安 223001
        摘要:天然石材既美观又自然。天然石材在建筑工程外墙施工中的应用,可以体现建筑温馨简约的历史背景。既能营造出富丽堂皇的建筑艺术效果,又能给人带来清新舒适的自然观感。小单元石幕墙施工技术改变了传统石幕墙受力状态混乱的现象,抗震性能有了很大的提高,现场施工方便,安装拆卸方便,才是幕墙的真正意义所在。因此,对小单元石幕墙施工技术的研究和分析具有重要的现实意义。
关键词:建筑工程;小单元;石材幕墙;施工技术;应用
1小单元石材幕墙概述
1.1不同幕墙施工工艺的对比
        小单元石材幕墙、石材幕墙、也称为SE组件由SE挂在石面板外侧单元组件的龙骨,SE单元由一个主要组成部分和S型、E型的两个副本,铝合金材料,它彻底改变了传统的物理性能,干挂石材幕墙的设计方法、处理方法及施工工艺。从对比分析的角度来看,常见石材幕墙施工工艺的技术性能对比如表1所示。
表1不同石材幕墙施工工艺技术性能比较
.png)
1.2小单元石材幕墙施工特点
        1)采用小单位干挂技术,石头板和铝合金年代,E辅助部件组合在一起,石厂,并组装成小单元组合部分,运输到施工现场,直接固定在主要部分,易于安装,可有效缩短施工周期,并减少了施工现场石材开槽造成的粉尘污染。2)石板受力独立,传力路径简单,不会产生相互连接造成的不确定应力集中和应力积累。3)简化了幕墙的安装方法,提高了幕墙的安装质量和安装速度,同时实现了单板的移动和拆卸,便于以后的维护和维修。4)石材和副件可使用固化时间较长的干挂AB胶进行粘结,杜绝了云石胶的使用,提高了挂件与石材的粘结强度和可靠性。
2实例分析小单元石材幕墙施工技术
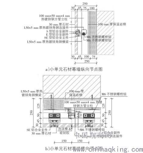
某医院住院大楼建筑工程项目,建筑总面积约为2.34万m2,建筑高度约为58.8m,其中地下1层,地上15层。本工程为一类高层建筑,抗震设防烈度为6度。工程建设幕墙施工采用小单元石材幕墙技术(见图1),在确保建筑质量的同时,保障施工进度。具体施工技术要点如下。
.png)
图1小单元石材幕墙纵横向节点图
2.1施工流程
        施工前准备→测量放线→后置埋件安装→幕墙钢骨架安装→小单元石材组件加工→石材面板安装→耐候胶嵌缝。
2.2具体施工方法
1)施工前准备。
包括作业条件复核、技术准备、材料准备、机具准备、人员准备等。
2)测量放线。
        用高精度的激光水准仪、经纬仪,配合标准钢卷尺、吊锤、水平尺等测量。测量应反复2次核对测量数据,以确保测量精度。
        标高控制线施放:依据建设方提供的建筑±0,在建筑物临边柱面或墙面施放标高控制线,并定义该标高控制线的建筑高程,结合设计标高,对建筑进行复测,如能满足设计及施工要求,则按照该线对幕墙高程进行控制,如不满足则应及时与总包、监理及设计单位联系,提出修改意见。幕墙完成面控制线施放:根据建设方提供的轴线,在建筑临边楼板部位施放控制线,按照幕墙设计尺寸对建筑尺寸进行测量,如建筑偏差在幕墙找差、调节范围内,则依据设计要求对幕墙完成面进行定位,并将施放的线作为幕墙轮廓定位线,如建筑结构偏差超过幕墙的找差、调节范围,则应及时通知总包、监理及设计单位,进行方案调整。为了保证测量放线的准确性,测量放线应在风力不大于4级的情况下进行,对实际放线与设计图之间的误差应进行调整、分配和消化,不能使其积累。
3)后置埋件安装。
        依据水平控制线及完成面定位线,按照图纸要求,施放埋板控制线。
根据设计所选用的螺栓规格(本案例采用M12×160定型化锚),确定钻孔规格及钻孔深度;接好电钻(锤)电源,进行钻孔施工,钻孔施工完成,检查成孔直径及深度。用空压机或其他设备吹出螺栓孔内灰尘,用毛刷或棉丝蘸丙酮将植筋孔擦拭干净;将专用胶注入孔内2/3,将化学锚栓缓慢插入洞内,直至达到洞底部为止。锚固胶体从洞口溢出,则锚固合格;锚固完后,在24h内不得人为扰动,以保证锚栓质量;待化学锚栓完全固化后,按设计要求做拉拔试验。将埋板(本案例采用200×300×10热镀锌钢板)穿套于植入的螺栓上,通过螺母,固定于结构表面;对埋板的位置进行调节后,将螺母紧固。后置埋件的标高偏差不应大于±10mm,预埋件位置与设计位置的偏差不应大于±20mm。
4)幕墙钢骨架安装。
        按照现场测量数据并结合图纸要求,对型钢进行切割、焊接、钻孔、破口等加工,现场制作竖向龙骨、横向龙骨、套接件等钢构件。
依据水平控制线及完成面定位线,按照图纸要求,施放骨架控制线和定位线。
        按照图纸要求及龙骨定位线,先将龙骨吊挂连接件(本案例采用10号热镀锌槽钢)点焊在后置埋板上,点焊时每个焊接面点2点~3点,要保证连接件不会脱落,且达到一定的受力强度;点焊时要两人同时进行,一人固定位置,另一个点焊,这样协调施工同时两人都要做好各种防护;点焊人员必须是有焊工技术操作证者,以保证点焊的质量。将加工好的竖向构件(本案例采用100×50×4镀锌方管),通过吊装方式吊装至连接件位置,通过不锈钢螺栓与连接件进行连接,竖龙骨与连接件间需加PVC隔离垫片;连接好以后对竖向龙骨三维垂直度进行调整,然后将连接螺栓紧固。
        竖龙骨安装完成后,根据图纸排版在竖向龙骨表面出横龙骨定位线,本工程幕墙横龙骨(本案例采用L50×5热镀锌角钢)与竖龙骨连接方式为一端焊接、一端栓接,先将横龙骨连接角码焊接于竖向龙骨表面,然后将横龙骨栓接端与连接角码(本案例采用L50×5热镀锌角钢)进行栓接,另一端点焊于竖龙骨表面。
        横、竖龙骨安装完成后,项目部质检员应及时对龙骨安装情况进行自检,自检合格后,施工班组对所有焊接部位进行满焊施工,焊接应严格按照设计要求及相关规范进行;满焊结束后,敲去焊渣,且对焊口涂刷防锈漆三遍。
5)小单元石材组件加工。
        石材面板(本案例采用30mm厚天然花岗岩)在厂家裁切完成后进行SE副件复合,项目部需向厂家提供开槽图纸,明确石材的开槽位置及开槽数量。石材槽口由机械在水平状态下开出,板材开槽位置应由板材外露面返至板中。槽口的深度、宽度、长度依据所选定的SE挂件的厚度、长度和宽度进行确定。本案例石材槽口长度为80mm,宽度为6mm,深度为20mm。
        石材板块上下端槽口为内低外高的异形槽口,外表面石材槽口边高于内侧石材槽口边6mm,凹槽深度为20mm。石材开槽截面图见图2。
槽口开好后将SE铝合金副件与石材板块进行复合,下部槽口复合S型铝副件,上端槽口复合E型铝副件,组成小单元石材组件,石材与副件复合采用双组分干挂胶,待胶干后运送至施工现场。石材复合副件图见图3。
.png)
图2石材开槽截面图     图3石材复合副件图
结束语
        小单元石材幕墙技术本身是简单的构造,上下盘子不转移力,耐震性好、施工效率高、易于更换和维护,一个广泛的应用领域,相关人员应注意施工技术的研究,注意细部结构施工,提高工程质量。
参考文献
[1]赵磊,阮跃华,刘军.小单元石材幕墙施工技术应用[J].建筑技术,2010(8):38-40.
[2]王丽筠,杨波,周凯谊,等.装配式幕墙综合施工技术[J].建筑技术,2019,50(12):1428-1429.