潮州市汇能电机有限公司 广东潮州 521000
摘要:文章以某电站为例,就电站水轮发电机的特点及结构进行了分析,并从电磁设计、防油雾设计等方面探讨了水轮发电机优化设计方法及应用措施,从中提出了自己的意见,为今后水轮发电机设计制造提供参考。
关键词:水电站;水轮发电机;电磁设计;防油雾设计
1 工程概况
某引水式电站,设计水头133.68m,发电流量63.37m3/s,总装机容量70MW(2×28+1×16MW)。本站选用SF28-14/4000型水轮发电机,发电量28MW,转速428.6r/min。在功率为30.8MW的情况下,该机组长期处理稳定运行状态,且机组转速较高。发电机设计参数见表1。
表1水轮发电机设计参数
.png)
2水轮发电机概述
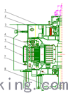
发电机选用立式结构,将转子悬挂起来;并将推力轴承设置在转子上部,导轴承设于转子下部;在电机上端设置圆柱轴伸,其与集电环相联接,在电机下端设置凸缘轴伸,并与主轴联接。在通风系统设计时,选用空气冷却系统。发电机主要分为多个部件,有上机架、下机架、定子、转子、等,见图1。
.png)
注:1.上盖板装配;2.上机架装配;3.千斤顶装配;4.转子装配;5.定子装配;6.空冷器装配;7.下机架装配;8.下盖板装配
图1 发电机装配
水轮电磁设计主要是指按照发电机的容量、功率、相数、转速等技术要求进行发电机尺寸、绕组数据、性能等参数的确定。同时,要确保设计方案的技术性和经济性,从而保证发电机的运行效率和安全性。
在水轮发电机运行时,其轴承润滑油因受到摩擦,从而导致承载热量的产生,进而提升油温,一般控制在40~50°C,但由于油箱内部的空气受到热量的影响,导致膨胀,增加压力;且在主轴旋转时,热油就会出现油雾,在高压作用下,油汽混合体就会从间隙泄露,直接影响到发电机组运行效率。发电机轴承处的线速度为20.4m/s,额定转速为428.6r/min。可见,在电站发电机设计过程中,如何做好轴承防油雾设计成为了此工作的重点和难点。
3 电磁设计
在功率达到30.8MW时,能够保证发电机长期稳定运行,所以在电磁方案设计时,应在功率28MW时或30.8MW时进行取值。额定情况下的相关参数取值如下:
(1)电负荷A作为水轮发电机的关键技术参数,直接影响到电机的电抗和绕组温度。电负荷的大小直接影响到定子内圆的绕组铜损大小,同时还会影响受到温度升高和效率高低的影响。可见,电负荷的取值与绝缘等级、冷却方式息息相关。在满足尺寸要求下,电负荷A与漏电抗成正比,且A的平方与发电机的短路损耗与成比例。可见,A直接影响到电机的参数和性能。因此,我们应对电负荷A值进行优选。一般来说,A值应控制在500~700A/cm。
(2)AJ表示电负荷与定子电流密度的乘积,是指在槽内定子铜耗的热负载。如果AJ过大,就会增大槽绝缘内温差,进而提升线圈温度。本机AJ值控制在1500~1800A2(/cm·mm2)之间。
(3)极弧系数作为极靴宽度与极距之比,如果极弧系数过大,就会导致极间磁通过大,导致其密度难以达到允许的高值;如果数值过小,将难以发挥极靴伸出部分的磁极线圈。可见,应合理优选极弧系数,使主极磁场的波形与正弦形相接近,以减小高次空间谐波的幅值,进而实现电动势波形的改善。在磁负荷方面,为了充分利用电机有效体积,应保证极弧系数达到最佳值。本机极弧系数值控制在0.69~0.74。
(4)对于电机气隙平均磁通密度,主要受到电机的运行性能、利用系数、等参数的影响。在满足利用系数要求下,结合节约用铜的需求,在气隙平均磁通密度取值时,应取高值,而考虑到气隙平均磁通密度值主要受铁芯所用硅钢片饱和的限制。本机将发电机气隙平均磁通密度值控制在6900~7500Gs。
(5)在定子绕组选择时,选用三相双层波绕组,定子槽数为168,并联路数为1,采用玻璃丝包烧结扁铜线,换位节之间的距离为45mm,定子绕组采用360°不完全换位,以降低附加损耗,提高换位效率,本机效率为97.7%。
4 防油雾设计
在立式机组系列中,由于本机组额定转速为428.6r/min,属于高转速,故应做好轴承防油雾设计,机组轴承产生的油雾由油温高和涌浪飞溅所引起,应采取减少油雾及防止外溢的措施,具体措施如下:
(1)在上下油槽设计时,其轴承盖采用接触式密封结构,具有自动补偿功能,可以保证主轴和轴承盖接触之间的密封性,防止油雾逸出,见图2。在机组转子运行过程中,经常出现摆动现象,这是因为转子轴与密封结构存在一定间隙,从而导致在运行时存在摆动,进而导致油雾从大轴与密封盖之间的间隙溢出。由于接触式密封盖具有自动补偿功能,从而确保主轴与轴承盖间能够达到零间隙运行状态,提升了主轴与轴承盖之间的密封效果。
.png)
图2 接触式密封轴承盖
(2)为减少因转子旋转产生的负压,防止油雾溢出,故将接触式密封盖设置于上机架下方。这样能够有效解决了油雾对发电机转子的污染,确保机组安全稳定运行。
(3)通过将通气孔加设在导轴承座上,或者将补气管增设在机架下部,且可以将空气引入内腔,从而使内腔和外腔相互连通,以确保气压的平衡性,防止油雾溢出问题的发生。
(4)在冷却器设计时,应确保换热容量充足,以防润滑油形成雾状;与此同时,应做好循环油路的密封处理措施,同时在油冷却器上言加设密封板,以实现油路的优化,确保油路顺畅,防止油气混合现象的出现。
(5)挡油管采用双层模式,且提升挡油管高度,管道下部连接采用圆环板进行连接,同时在圆环板上开孔,使溢出油流回油槽。除此之外,还可以加设一层挡圈于双挡油管中间,以防止油雾出现溢出现象。
(6)在通气窗设计过程中,应采用隔板设计方式。如利用筒内的隔板和隔管进行多层设计,以形成S形的路径,这样有利提高油雾的阻力,且在通气窗内能够使外界冷空气与油雾进行适时热交换,以降低油雾分子的平均动能,并将油雾冷凝成为油滴,再回流至油槽,这样能够有效防止油雾从通气窗溢出。
(7)在挡油管设计时,应适当提高加工精度,以保证推力头和挡油管与的轴度,防止两者之间的润滑油向上窜动,以防止油雾的溢出。
5 结语
总而言之,由于电站发电机组转速快,且容量大,通过水轮发电机优化设计,尤其是电磁的优化设计、防油雾的优化设计等,能够有效地解决了水电站水轮发电机超出力的设计及轴承油雾溢出的问题,为今后类似水轮发电机设计提供有利的参考依据。
参考文献:
[1]白延年.水轮发电机设计与计算[M].北京:机械工业出版社,2017.
[2]陈锡芳.水轮发电机电磁与计算[M].北京:中国水利水电出版社,2019.