刘畅
        中国市政工程华北设计研究总院有限公司  天津  300381
        摘要:以兖州图书馆的工程设计实践为例,提出公共建筑内空间设计尺度控制中的一些处理手法,作为类似工程的一种参考借鉴。
        关键词 公共建筑 空间尺度 控制手法
        本人作为建筑专业负责人和主要设计人,在2020年07月-2021年03月参与了济宁市兖州区文化中心及配套设施项目中的兖州图书馆的设计工作。
1.工程概况
为贯彻落实好济宁市委提出的“兖州在科学发展、转型升级、城市发展三个方面走在前列”的部署要求,兖州区决定一体规划新建图书馆、文化馆、档案馆、科技馆及配套等设施,建设文化中心及配套设施为群众提供文化、休闲、科教、娱乐服务。文化中心及配套设施的规划建设对完善城市功能、加快文化事业发展、丰富人民群众文化生活、推动美丽和谐新兖州建设具有重要意义。
兖州图书馆是一座以社会科学、哲学、综合类图书和电子信息的数字化服务为主,结合科研、学术、教育等功能,为广大市民提供知识型借阅服务的现代化中型图书馆。整体空间满足藏书量55万册,阅览坐席900座的设计要求,地上四层、地下一层。
.png)
空间设计上,我们希望打造以传统书院为原型,用现代建筑的手法,抽象园林的设计意味。在这一思路引导下,整体建筑空间形成了“一廊”、“二体”、“九院”的空间格局。 
.png)
一廊:60m通长中庭作为图书馆主要的公共空间,联系南北功能体,自然采光充足。中庭空间与院落嵌套,打造庭中有院、院中有庭的室内空间。
二体:中庭将建筑南北两侧分为了两个功能体。北侧为开放阅览及办公区,中庭南侧为以尼山书院为核心的阅览活动区,二体空间各有特色,并通过通廊互相联系。
九院:建筑内共有九个院子,我们根据服务对象的不同,将它们划分为四种类型:(1)东、西入口院落;(2)三层通高的角部院落;(3)服务于尼山书院的院落;(4)顶层内向办公院落。九个院落与一廊、二体空间嵌套、互为联系。
在建筑设计中呈现出来的清晰明确的空间、庭院相生的布局、移步异景的活力、简约现代的风格是设计的出发点。
2.建筑内部空间尺度的控制
兖州文化中心和其中的兖州图书馆是兖州区的地标性公共建筑,对建筑的空间形态和尺度的要求标准高,建筑每个部位的尺度均经过仔细的推敲。在施工图设计阶段,建筑专业与结构和设备专业进行了大量的节点设计和对接工作。通过大量的工作,成功解决了兖州图书馆两个重点部位的结构设计和管线布置。
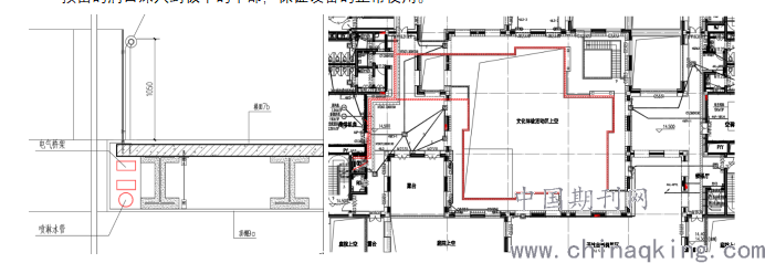
(1)尼山书院的挑板板厚控制
         尼山书院的挑板我们控制的完成面厚度是750mm,钢结构梁经过结构工程师的不断优化最终做到了500高。但是因为在出挑方向和封边方向均需要设梁,那么750mm的板厚就没有水、电专业管线的布管空间了。经过各种方法的思考和与设备专业的沟通,最终我们通过下图的方法顺利解决。
         我们将结构封边梁从常规的齐板边线的位置内退了300,将电气桥架和消防喷淋水管沿挑板边缘布置,将以往需要在梁下预留的设备管线空间转移到了梁侧,并将水电的支管通过在每个梁格封边梁上预留的洞口深入到板下的中部,保证设备的正常使用。
.png)
(2)中庭北侧挑板的板厚控制
         这个位置的板厚控制尺寸是1050mm,因为结构梁高为800mm,与尼山书院存在相似的问题,即设备管线在梁下的吊顶空间中没有安装空间。这个区域我们用了另一个方法解决。
         因为中庭北侧书墙(即中庭与北部阅览室之间的隔墙)没有厚度控制要求。我们将水、暖、电的管线隐藏在了书墙两侧装饰面与中间的气体墙的空隙中,通过垂直方向的管线组织使每个专业的管线在不同的高度穿过书墙内空间,到达服务区域。
.png)
         以上是我在兖州图书馆项目中针对公共建筑的空间尺度控制与建筑正常使用的结构和设备专业需求的结合中的一点心得,希望对大家今后的设计工作能有一点启示。