沈向荣
        东大(深圳)设计有限公司上海分公司  200436
        摘要:随着社会的日益发展、人们对休憩环境的要求也越来越高,但是面对越来越紧张的用地、绿化指标以及各种规范的要求,怎么安全兼美观的处理地形高差的问题成了所有园林景观工程中的难点。挡土墙设计便成了这一难题的最好的解决办法之一。挡土墙类型众多,有重力式挡土墙、衡重式挡土墙、半重力式挡土墙、悬臂式挡土墙、扶壁式挡土墙、桩板式挡土墙、锚杆式挡土墙等等。本文以园林景观工程最常用到的悬臂式挡墙为例,通过对工程项目分析、计算条件的取值、荷载计算、稳定验算,推导出了一套最为简便的设计步骤,望能给予广大园林景观工作者启发。
        关键词:悬臂式挡土墙 ;计算条件的取值;荷载计算;稳定验算
引言
        挡土墙是指支承路基填土或山坡土体、防止填土或土体变形失稳的构造物。在园林景观工程中运用广泛,比如:驳岸设计时需用到挡土墙;高地形处的景墙设计时需用到挡土墙;层级绿化设计时需用到挡土墙等等。不同的适用位置,不同的景观表现效果,挡土墙的做法也不尽相同,按其墙身材料又能分为:砖砌挡土墙(适用于挡土高度0.45m~0.8mm左右,常用于矮座凳、景墙、台地花池等);浆砌块石挡土墙(适用于最高挡土高度3m~4m左右,常用于自然水景驳岸、景墙、台地花池等);钢筋混凝土挡土墙(适用于最高挡土高度4m~5m左右,常用于水系驳岸防汛墙、景观小区围墙、造型景墙等)。下面以《南京南站南广场景观设计》项目中运用的悬臂式挡土墙为例,重点阐述如何在既满足效果呈现,又保证结构安全性和经济性的前提下,并结合现场工程实际情况及地质条件,设计出最合适的悬臂式挡土墙的方法。
1、工程概况
        该项目位于南京南高铁站,北临高铁站台,南接景观主轴,内设商务办公及商业购物,周边紧邻大量商业、商务及居住社区,承载着商业购物、人流汇聚、城市门户形象以及景观节点的重要功能。
        方案设计理念:大气简洁的公共形象,丰富的休憩体验空间,贯通上下层商业空间,打造立体多变的城市广场形象,提升区域活力。见图-1。
.png)
                图-1 项目总平面图
2、挡土墙类型比选与前期分析
        挡土墙位于与中轴线下沉广场两侧,总长度约150m,挡土高度为3米,根据方案设计理念,首先要分析并判断出合适的挡土墙墙身材料,详解如下
2.1.判定砖砌挡土墙是否适用
        砖砌挡土墙的优点是造价便宜,施工方便,能用于空间狭小的区域,根据挡土高度的不同,其截面可选用240mm宽或370mm宽挡土墙等,而且结构完成后方便饰面设计,立面和顶面均能贴石材,可以营造出现代的设计风格,符合本方案设计理念。但是其缺点在于挡土高度不能太高,因为砖砌挡土墙均采用水泥砂浆砌筑而成,一旦下雨或墙背填土略高,其墙背土压力增大很可能导致其结构失稳发生滑移或断裂,造成安全隐患,且本项目要求的挡墙挡土高度为3米,故不适用。
2.2判定浆砌块石挡土墙是否适用
        浆砌块石挡土墙的优点是造价便宜,施工方便,挡土高度可达4m左右,但是其缺点在于其截面较为笨重,墙背需有一定的倾角,占用空间略大,而且结构完成后饰面不太好处理,一般只能保留其块石原样,质感较为粗糙,所以比较适合用于路堤、自然河道、风景区绿地等区域的景观营造。不符合本方案提出的现代感和商业感的设计理念,故不适用。
2.3判定钢筋混凝土挡土墙是否适用
        钢筋混凝土挡土墙种类颇多,主要以悬臂式挡土墙最为常用,其优点是结构稳定,耐久,施工方便,不受小空间的限制,截面形式轻巧,根据挡土高度的加大,更能衍变成扶壁式挡土墙进一步提升结构安全性。根据其墙身材料特性,对饰面处理变得很简单,无论是湿贴石材还是干挂石材都能直接在钢筋混凝土结构上进行,可营造出大气简洁的设计效果,完全符合本方案设计理念,故最终选定悬臂式挡土墙。见图-2。
.png)
图-2 挡土墙位置效果示意
3、悬臂式挡土墙设计
3.1计算条件
3.1.1土压力计算物理参数
Φ —— 回填土内摩擦角。   
        一般取30°~45°,本案回填土采用砂砾土,按最不利工况考虑,取0°。
c  —— 墙后填土的粘聚力。  
        根据土质情况来判断,且必须保证在任何情况下墙背填土的粘聚力都
        不会降低,粘聚力越大,挡土墙结构越稳定,但是这是理想的工况条
        件,很难满足,所以按最不利工况考虑,建议取0。
γ —— 墙后填土的容重。  
        一般取17~19KN/m3,根据地勘报告,墙后填土为砂砾土,考虑雨季绿
        化池内土容重会增加,容重越大就代表墙后土压力越大,对挡墙的稳
        定影响也越大,所以按最不利工况考虑,取19KN/m3。
[Kc] —— 滑动稳定安全系数。
        取1.3,抗滑移稳定验算结果Kc>1.3表示验算满足。
[Ko] —— 倾覆稳定安全系数。
        取1.5,抗倾覆稳定验算结果Ko>1.5表示验算满足。
[R] —— 修正后地基容许承载力。
        根据地勘报告取值,地基土为中等密实粘性土,基础埋深标高土层的
        容许承载力为120Kpa。
f  —— 基底摩擦系数。
        该参数用于抗滑移稳定性验算,原则上应该按实验结构取值,若无实
        验条件,可按参考值进行取值。根据地勘报告,地基土为中等密实粘
        性土,取0.3。各种基地摩擦系数取值,见表-1
.png) 
3.1.2地基应力计算物理参数
e  ——  偏心距。
         指偏心受力构件中轴向力作用点至截面重心的距离,偏心距越大,
         对结构的稳定影响就越大,基础就容易产生不均匀沉降,e<L/4表
         示验算满足。
σmax —— 地基最大压应力。
         荷载作用于墙趾处地基压应力。
σmin —— 地基最小压应力。
         荷载作用于墙踵处地基压应力。
σcp  —— 地基平均压应力。
         取最大压应力与最小压应力之和的一半,σcp<[R]表示验算满足。
[η]  —— 容许应力大小比。
         取3.0,最大压应力与最小压应力之比η<3.0表示验算满足。
3.1.3钢筋混凝土结构物理参数
        γa  —— 钢筋混凝土容重。一般取25KN/m3
        C25  —— 混凝土强度等级。
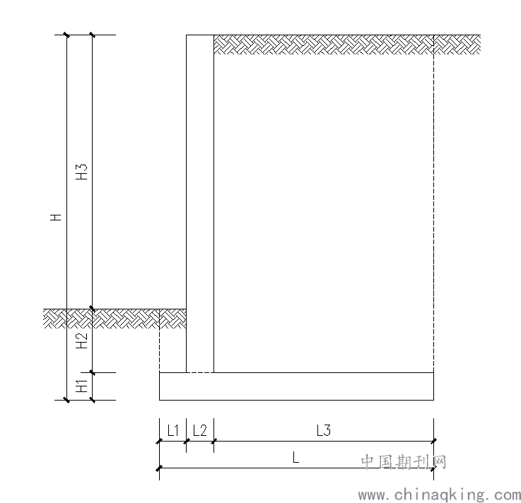
3.1.4墙身尺寸参数
        L1 —— 墙趾长度;L2 —— 立墙宽度; L3 —— 墙踵长度;L  —— 底板总长度;H1 —— 墙踵、墙趾高度; H2 —— 墙趾上覆土高度;H3 —— 挡土高度;H ——  墙身总高。
3.2初拟断面尺寸
3.2.1画出挡土墙断面尺寸示意图,见图-3。
.png)
        图-3 挡土墙墙身尺寸参数示意
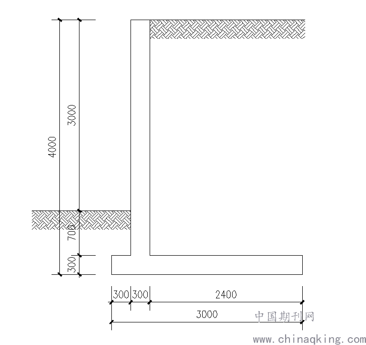
3.2.2拟定立墙尺寸,见图-4。
        按方案要求挡土高度H3=3m,墙顶宽度0.3m;立墙底宽取墙高H3的1/10,即0.3m
根据构造要求,立墙宽度不应小于0.25m
3.2.3拟定底板尺寸,见图-4。
墙趾厚度H1=0.3m,长度L1=0.3m;墙踵厚度H1=0.3m,长度L3=2.4m;底板总长度L=3m。挡墙埋深H1+H2=1m
.png)
        图-4 挡土墙墙身尺寸示意
3.3作用在挡土墙上的荷载计算
3.3.1画出挡土墙断面荷载分布图,见图-5。
.png)
                图-5 挡土墙荷载分布示意
3.3.2土压力计算
        采用朗肯公式计算土压力。
        计算土压力增大系数Ka
        Ka=tg2(45°-φ/2)
          =tg2(45°-30°/2)
          =0.333
        计算主动土压力
        Ea=1/2*γH2Ka 
          =1/2*19*42*0.333
          =50.616KN,其力的作用点高度Za=H/3=1.333m
3.3.3墙身自重计算(按挡土墙1米标准段长度计算)
        计算出立墙的自重
        G1=L2*(H2+H3)*1*γa
          =0.3*3.7*1*25
          =27.75KN
        计算出底板的自重
        G2=L*H1*1*γa
          =3*0.3*1*25
          =22.5KN
3.3.4作用于底板上土重计算(按挡土墙1米标准段长度计算)
        计算出踵板上的土重
        G3=L3*(H2+H3)*1*γ
          =2.4*(0.7+3)*1*19
          =168.72KN
        计算出趾板上的土重
        G4=L1*H2*1*γ
          =0.3*0.7*1*19
          =3.99KN
3.4稳定验算
3.4.1抗滑移稳定验算
        首先,计算出滑移力,滑移力就是水平方向作用于墙背的所有力的总和,本案中即为土压力,也就是Ea=50.616KN;其次,计算出抗滑力,抗滑力就是墙身自重与底板上土重的总和再乘以基底摩擦系数得出的结果,也就是f*(G1+G2+G3+G4)=66.888KN;最后,计算出抗滑移安全系数Kc与[Kc]进行对比
        Kc=f*(G1+G2+G3+G4)/Ea=0.3*(27.75+22.5+168.72+3.99)/50.616=1.32>[Kc]=1.3,抗滑移稳定验算满足
3.4.2抗倾覆稳定验算
        首先,计算倾覆力矩,倾覆力矩就是作用于墙背的水平力绕墙趾0点逆时针转动,从而可能造成挡土墙倾覆的力矩(物理学上也可称之为弯矩)。从上面土压力计算过程中得道水平力为Ea,Ea的作用点到墙趾0点的距离(物理学上也可称之为力臂)为Za=H/3=1.333m,所以力矩计算过程如下:
        Ma=Ea*Za
               =50.616*1.333
               =67.47KN*m
其次,计算抗倾覆力矩,抗倾覆力矩就是墙身自重与底板上土重的竖向力绕墙趾0点顺时针转动,从而形成的可以抵抗倾覆力矩使挡土墙达到稳定平衡的力矩。以G1为例,并且找到其重心点位置(矩形的重心点为对角线的交点)后,便能知道G1的作用点到墙趾0点的距离为Z1=0.45m,
        所以力矩计算过程如下:
        M1=G1*Z1
               =27.75*0.45
               =12.4875KN*m
        以此类推,可以计算出M2、M3、M4的力矩:
        M2=G2*Z2
          =22.5*1.5
          =33.75KN*m
        M3=G3*Z3
          =168.72*1.8=303.696KN*m
        M4=G4*Z4
          =3.99*0.15
          =0.5985KN*m
        最后,计算出抗倾覆安全系数Ko与[Ko]进行对比:
        Ko=(M1+M2+M3+M4)/Ma
          =(12.4875+33.75+303.696+0.5985)/67.47
          =5.20>[Ko]=1.5,抗倾覆稳定验算满足
3.4.3偏心距计算及地基应力验算
        根据上面的计算,得出了作用于挡土墙上所有的荷载值,但是反过来我们需要考虑的是地基是不是能承受这么多重力,是否会发生沉降,又是否能均匀的分散这些力,所以在解决了抗滑移与抗倾覆稳定验算之后,还需解决最后一项地基应力验算
        首先,计算偏心距,作用于墙趾0点的总弯矩
        ΣM=M1+M2+M3+M4-Ma
               =283.062KN*m
        作用于基础底的总竖向力
        ΣG=G1+G2+G3+G4
               =222.96KN
        偏心距
        e=L/2-ΣM/ΣG
         =3/2-283.062/222.96
         =0.23
        且e<L/4=0.75,偏心距验算满足
        其次,计算地基最大应力和最小压应力:
        σmax=∑G/L*(1+6e/L)
        =222.96/3*(1+6*0.23/3)
        =108.5072Kpa
        σmin=∑G/L*(1- 6e/L)
        =222.96/3*(1-6*0.23/3)=40.1328Kpa
        然后,计算地基平均压应力
        σcp=1/2(σmax+σmin)
        =1/2*(108.5072+40.1328)=74.32Kpa<[R]=120Kpa
        最后,计算容许压应力之比
        η=σmax/σmin
          =108.5072/40.1328
          =2.7<[η]=3.0,地基应力验算满足
4、经验总结
4.1拟定断面尺寸的经验总结
        4.1.1立墙,首先,对挡土墙立墙宽度L2进行判断,按构造要求L2不能小于0.25m;其次,L2一般取值范围为0.25m~0.4m,太宽会增加造价,影响景观效果;最后,挡土高度H3已知情况下, L2=1/10*H3。
        思考:如果挡土高度达到5m甚至6m时,我们就要考虑将立墙背做成斜面,假定立墙顶部宽度保证0.3m的同时,底部宽度L2=1/10*H3增加立墙底部宽度,并可考虑加腋,这样既能节约造价,又不影响景观效果。
4.1.2底板
        首先,对底板总长度L进行判断,当挡墙总高H已知情况下,按经验L=0.8*H。
        其次,对踵板长度L3进行判断,根据经验得出公式L3=0.6*H。
        最后,对趾板长度L1进行判断,一般L1≥L2,上面已分析出L、L2、L3的长度,那么L1=L-L2-L3。
4.2稳定验算的经验总结
4.2.1抗滑移
        定义:简单来说就是挡土墙结构自重ΣG(竖向力)大于土压力Ea(水平力)就能达到抗滑移的结果。
        计算:首先,计算出Ea和ΣG;其次,根据表-1所示,选取摩擦系数f,一般地勘报告会提供该数据;最后,按计算公式Kc=f*ΣG/Ea>[Kc]=1.3,即为满足要求
        思考:如果计算结果不满足要求,增加钢筋混凝土的体积就能相应的提高结构自重ΣG。比如增加H1厚度,一般H1厚度取值0.25mm~0.4mm。若还是无法满足,可再增加L1和L3的长度等等,通过反复验算以满足要求。
4.2.2抗倾覆
        定义:简单来说就是挡土墙结构自重ΣG(竖向力)绕墙趾0点形成的力矩大于土压力Ea(水平力)绕墙趾0点形成的力矩,那么就能达到抗倾覆的结果。
        计算: 首先,计算出抗倾覆力矩ΣM,可以将墙身划分为几个区域,分别计算墙身容重G绕墙趾0点产生的力矩再累加;其次,计算出倾覆力矩Ma,也就是Ea绕墙趾O点产生的力矩;最后,按计算公式Ko=ΣM/Ma>[Ko]=1.5,即为满足要求.
        思考:如果计算结果不满足要求,那么我们就要考虑适当的增加趾板的长度L1与厚度H1,通过反复验算以满足要求。
4.2.3地基压应力
        定义:
        简单来说就是地基能否承受上部施加的压应力。
        计算:
        首先,计算出偏心距e,按计算公式e=L/2-ΣM/ΣG,若e<L/4,即为满足要求;其次,按计算公式得出最大压应力σmax=∑G/L*(1+6e/L);最小压应力σmin=∑G/L*(1- 6e/L);然后,按计算公式得出地基平均压应力σcp=1/2(σmax+σmin);最后,按计算公式得出压应力之比η=σmax/σmin<[η]=3.0,即为满足要求
        思考:如果计算结构不满足要求,可以通过增加底板长度L,来加大受力面积,受力面积越大,对地基的压应力就越小,有效的避免挡土墙基础的不均匀沉降。当然在增加底板长度的过程中也要遵循之前拟定断面尺寸的方式,按比例增加,否则会导致偏心距e验算不通过。
5、结语
        要设计出合理的悬臂式挡土墙,还需要综合考虑工程中的实际情况,从安全、经济、美观这三个角度考量,合理的选用各计算参数、拟定合适的断面尺寸、按步骤代入计算公式进行稳定验算,理论结合实际,不断的累积经验,才能得到最满意的结果。最后,挡土墙设计可以说是一门综合性知识的积累,它涉及到了物理学,力学,材料学,岩土学等多种专业。通过笔者对悬臂式挡土墙界面设计和稳定验算的详解和经验分享,望能对广大园林景观工作者们的设计工作带来便利和启发,谢谢。
参考文献:
        (1)GB50007-2011 北京:建筑地基基础设计规范 中国建筑工业出版社 2002
        (2)国家建筑标准设计图集04J008 挡土墙(重力式 衡重式 悬臂式)
        (3)水工挡土墙设计 北京:中国水利水电出版社 1995年11月第一版