杨涛
中石化胜利油建工程有限公司
摘 要:随着海底管道服役时间的延长,泄露的风险也在逐渐增加。在这种形势下,相应的检测技术逐渐发展、日趋成熟,为早期发现、提前预防海管泄露提供了依据。海管外绑扎光缆是一种新的监测泄露方法,目前应用在海底管道的案例较少。光缆监测漏油具有信号传输快、抗干扰能力强、定位精确等优点。但由此造成油田建设阶段的海管铺设、挖沟等施工出现了新的难题。本文以光缆海管的挖沟施工为例,介绍此类型挖沟施工方法及风险控制。
关键词:海底管道;挖沟施工方法;风险控制
随着深入开发海洋油气资源,海底管道的数量日益增多,相应的后挖沟施工逐渐增多。具备常规海底管道后挖沟施工装备及能力,对于某些特殊海管的后挖沟施工则涉足较少。本文将主要介绍一种非常规海底管道后挖沟施工方法及风险控制。
一、海管外的附属物
所用到的海底管道并非是单一的无缝钢管,根据不同工况、不同环境的要求,会在海管外附加不同的材料。 (1)为了提升海管抗腐蚀能力,在海管外增加防腐涂层、加装阳极块等; (2)为了增强海管的保温性能及增加自重,在海管外设置保温层、水泥配重层等,同时也增强了海管的抗磕碰能力、减少海管漂移风险; (3)为了达到特殊流体、介质的同步输送或置换,出现了“子母管”; (4)为了实现海管渗漏的在线监测,在海管铺设时同步绑扎监测光缆。 相比于前面的几种海管外附属物,光缆是最为柔软和脆弱的,即使光缆外护套内有双层钢丝铠装保护,其强度也远低于钢管或水泥配重层,无法承受一般设备的磕碰或钢制物体的摩擦。 为了保护海管,最有效的方式是通过后挖沟使海管被掩埋,而海管绑扎光缆这一新问题对挖沟施工提出了更严格的要求。
二、海管外绑光缆的施工风险
由于光缆的强度较小,不可避免的存在一些天然风险。
(1)海管铺设完成后,光缆位于海管外层,易受外界环境或渔业活动的影响而造成破坏。 渤海湾内渔业活动较为频繁,渔船撒网、抛锚等会使海管外的光缆处在较大的安全隐患中。由于光缆需紧贴海管才能监测原油渗漏,一旦被破坏,基本无法修复如初。这就要求在铺管完成后第一时间进行挖沟施工,若条件允许,可前船铺管、后船挖沟,前后船同时作业。
(2)施工船舶起抛锚时锚缆对光缆破坏
目前国内挖沟船以锚系船舶为主,即挖沟船通过自身的8 个定位锚来稳定船位,通过前后绞锚的方式牵引挖沟机,沿海管方向进行挖沟。尤其在渤海海域,水深较浅,较适合锚系船舶施工作业。但若在起抛锚过程中,锚缆挂蹭到光缆,会造成光缆磨损甚至被磨断,因此挖沟船与起抛锚拖轮之间的配合显得尤为重要。 与此同时,海油工程、上海打捞局等单位均配备了 DP船(动力定位船),其可搭载更为先进的挖沟机进行施工,但由于该类型船舶通常吃水较深,无法适应渤海等较浅海域的
施工,且 DP 船施工费用较高。因此目前 DP 挖沟船主要服务于东海或南海较深海域的项目施工。
(3)施工过程中挖沟机对光缆的破坏
挖沟机主结构均为钢制材料,为降低挖沟机破坏海管的风险,一般在挖沟机导向臂内侧装设有尼龙滚轮,可有效避免挖沟机结构与海管的碰触。但若尼龙滚轮对海管的压力直接作用在光缆上,以光缆自身的强度是完全无法承受的,势必造成光缆被破坏。因此需合理设计光缆在海管外的绑扎方案,降低挖沟机与光缆接触的可能性,从而降低被破坏的风险。
三、绑光缆海管的后挖沟施工
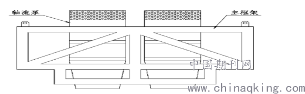
1.选择挖沟机
从保护海管外绑扎的光缆角度考虑,非接触挖沟机(如图 1)是最好的选择,该类型挖沟机采用水下悬吊式、挖沟机与海管无直接接触、大流量泵喷冲除泥的原理,来实现海管后挖沟。由于挖沟机与海管无接触,可最大限度保护光缆不被破坏。
图 1 非接触挖沟机示意图
但由于该挖沟方式仅通过大流量轴流泵进行喷冲,适应的土壤剪切强度较低(一般低于 20kPa),单遍挖沟沟深较浅,需重复挖沟才能达到设计埋深,效率较低、适应性差。不利于在海洋石油工业这种高风险、高投入的施工项目中控制工期。 本次施工所处的渤海某油田,地质情况复杂,土壤剪切强度普遍较高,局部甚至超过 100kPa。此种情况下使用非接触挖沟机将严重制约施工进度,大幅增加投入的船天、抬高了油田开发成本,与当今国际低油价形势、低成本开发的原则不符。同时,也会使后续清管试压等施工无法尽快开展,将会影响油田投产时间。因此该项目挖沟施工舍弃了非接触挖沟机,而采用效率更高的跨骑式水力喷射挖沟机。
2.挖沟机的适应性调整
由于光缆的特殊性,对挖沟机也有一定的要求,若不满足安全挖沟的条件,则需对挖沟机进行适应性调整或改造,确保挖沟机滚轮不会压到光缆。 以某项目为例,本次施工海管外径 540mm,为方便挖沟机就位并减少挖沟机左右导向滚轮与光缆接触的可能性,降低挖沟机对光缆的破坏风险,将挖沟机左右导向滚轮间距设置为 1,200mm。 挖沟机就位在海床上时,通过声呐等监控设备的指引,应保证挖沟机横滚轮高出海管 500mm 左右,避免横滚轮压到光缆。如图 2 所示。 施工时若挖沟机滑靴陷入泥面过深,会导致顶部横滚轮会压到海管外的光缆。因此在施工过程中,当挖沟机触地传感器反馈已触地信号时,应停止下放,并在挖沟过程中时刻关注声呐扫测图像,及时调整吊钩,保持滚轮与光缆的间距。
.png)
图 2 挖沟机与海管相对位置图
3.确定光缆绑扎方案
从对光缆的保护出发,将其安装于双层管的内外管之间是最有利的保护方式,但此时必然增加过多的光缆接头,造成信号在传输过程中的严重衰减,并增加了过多的潜在故障点。因此实际施工中,采用在海管外绑扎光缆的方式进行。 光缆在海管外的绑扎方案应兼顾施工便利、绑扎速度和牢固程度,使用不锈钢扎带将光缆绑扎在海管的 11 点和 1点方向,该位置既可满足光缆监测漏油的需要,又可降低挖沟机导向机构接触光缆的概率(如图 3 所示)。
.png)
图 3 光缆绑扎示意图
4.设置光缆保护罩
通过上述确定光缆绑扎方案,以及对挖沟机进行适应性调整后,在正常挖沟期间,挖沟机与光缆接触的可能性较小,不会造成光缆损坏。但仍有一项较大的风险来自挖沟机就位阶段,其导向臂端部与海管可能产生的碰撞。 由于挖沟机水下就位时,仅一名潜水员下水协助配合,而一名潜水员无法同时顾及挖沟机前、后,声呐又无法清晰的扫描出纤细的光缆,可能会造成挖沟机下放过程中某个导向臂端部滚轮直接戳到光缆而造成光缆断裂。 针对这一问题,需另外设计一套光缆保护罩。在水下挖沟机就位前,使用船舶吊机将保护罩吊装倒扣在海管上,并用尼龙绑带固定,该工作完成后,再进行挖沟机就位。根据挖沟机前后导向臂距离以及海管外径数据,合理设计保护罩尺寸,并在保护罩顶部焊接吊点,内部固定橡胶垫,以便隔离出顶部放置光缆的空隙。如图 4 所示。
.png)
图 4 光缆保护罩示意图
四、结语
该案例的实施过程充分保证了光缆的安全。从单纯海管的挖沟施工,到非常规海管的挖沟施工,由于海管外绑扎了脆弱的光缆,导致挖沟施工难度大幅增加,在施工方法上应结合实际工况,充分论证,在安全上万无一失、质量上可控、进度上满足计划预期。