浅谈跨高速公路连续梁智慧拆除技术

发表时间:2021/4/30   来源:《基层建设》2020年第34期   作者:李海超
[导读] 摘要:随着国家经济的快速发展、高速公路改扩建的需要,部分已建的桥梁已严重影响高速公路及城市道路路网建设,需要拆除重建。
        中铁十局集团第四工程有限公司  江苏省南京市  210046
        摘要:随着国家经济的快速发展、高速公路改扩建的需要,部分已建的桥梁已严重影响高速公路及城市道路路网建设,需要拆除重建。桥梁的拆除方法有绳锯切割吊离法、爆破拆除法和机械拆除法等。以上三种拆除方法均需要每一联整体同时拆除,才能保证桥梁结构的稳定性;同时大部分上跨高速公路的桥梁在拆除过程中必须确保车辆正常通行。因此选择一种正确、智慧的拆除方法,来保证拆除施工质量、施工进度、提高经济效益、缩短施工工期显得十分重要。
        关键词:跨高速公路;连系梁;旧桥拆除;机械破碎
        一、前言
        跨高速公路连续梁智慧拆除技术就是针对无法长时间、多次进行交通封闭拆除施工的跨高速桥梁拆除。在施工组织时,要根据节点进行交通组织,尽量减少交通组织改道次数以及减少封闭时间。跨绕城段主桥拆除施工首先要避免拆除废弃物破坏线下主路路面面层,得先做好防护措施。其次要做好施工交通组织,做好交通改道通行,做到桥梁拆除期间交通不封闭。根据设备选型做好桥梁分段拆除顺序,确保桥梁拆除安全。
        二、工程概况
        天保桥LY支线上垮桥老桥为现浇箱梁,桥梁共计8跨,设计墩柱7个,桥梁全长144m。桥跨布置为(16+20+20+16)+(16+20+20+16);B匝道老桥上部构造为预应力混凝土现浇箱梁,下部构造采用柱式墩、肋板台、钻孔灌注桩基础。
        天保桥LY支线上垮桥老桥(桥宽9m,包括两侧护栏后浇带)采用单箱单室断面,顶板厚度25cm,底板厚度25cm,跨中腹板厚度50cm,墩顶腹板厚度80cm,中横梁厚2.0m,端横梁厚1.65m。顶板悬臂长度1.6m,箱梁边腹板斜率2:1。
        三、老桥智慧拆除总体方案
        老桥拆除施工采用凿岩机进行机械对称拆除施工方法,首先需进行护栏及翼缘板拆除,随后进行箱体和墩柱破碎拆除,最后进行承台破碎即完成老桥拆除施工。天保桥LY支线上垮桥为8跨一联混凝土箱梁桥,因上跨绕城主线和C匝道高速道路,为保证施工安全分为三个阶段进行逐次拆除,拆除施工过程中为防止梁拆体失稳,故采用在梁底搭设贝雷支架起支撑防护作用。
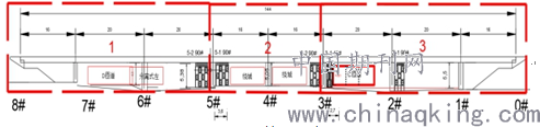
        本工程LY支线上跨老桥采用凿岩机进行机械对称拆除,拆除阶段总计分为三个阶段:第一阶段为5#-8#墩老桥(不含5#墩柱),第二阶段为3#墩-5#墩位置(含5#墩),第三阶段为0#墩-3#墩(含3#墩)。具体区域划分见下图:
 
        图3-1 LY支线桥连续梁拆除阶段区域划分
        LY支线上跨老桥采用的是单箱双室直腹板形式断面,根据老桥图纸的断面形式,桥梁连续梁纵向没有预应力体系,为了保证拆除的稳定性以及拆除的工作效率。上部结构的拆除顺序为采用绳锯机整体切割分离,再拆防撞墙、翼缘板、顶板、腹板对称拆除,最后拆除底板。结构图、结构块分布如图:
 
        图3-2 LY支线桥断面结构块分布图
        四、分阶段拆除施工安排
        1.第一阶段拆除施工安排
        LY支线上跨桥第一阶段施工内容为为5#墩至8#桥台位置根据老桥图纸和现场条件踏勘,桥梁5#-8#墩有两侧有较大空间,机械站位两侧对称拆除;拆除不涉及交通转换。施工计划(1d)
        LY支线上跨桥第一阶段拆除施工中在5#墩两侧搭设贝雷支架,待支架搭设完成后,在5#墩靠大里程测进行桥梁切割,后采用凿岩机两侧对称拆除。
 
        图4-1 第一阶段拆除示意图
        2.第二阶段拆除施工安排
        LY支线上跨桥第二阶段施工内容为跨绕城主线段3#墩至5#墩之间(含5#墩柱),计划投入2台480凿岩机和4台210凿岩机,施工前进行交通转换绕城公路主线为封闭阶段,车辆保通通过分离式左幅主线和绕城与C匝道间临时便道实现通行,需要注意的是此阶段3#墩靠近小里程侧搭设场地宽度较小,因此临时占用C匝道内侧硬路肩。拆除时为了有效快速的保护路面,采用1cm橡胶垫作为路面保护材料。
 
        图4-2 第二阶段拆除示意图
        施工期间,利用分离式主线和临时便道保通,保证绕城公路主线和刘村互通正常通行。临时保通时间为(6:00-18:00)计12小时;
 
        图4-3 绕行路线
        考虑到该阶段拆除后其余箱梁的整体稳定性,故在拆除后,在两3#墩、附近保留一组贝雷支架,以确保其端部的整体稳定性。
        LY支线上跨桥第二阶段拆除安排如下:
        表4-1 LY支线上跨桥第二阶段机械拆除施工步骤
        3.第三阶段拆除施工安排
        LY支线上跨桥第三阶段施工内容为为0#墩至3#桥台位置,根据总体计划安排,临时封闭C匝道,利用绕城与C匝道之间临时便道通行根据地方道路导流车辆。
        LY支线上跨桥第三阶段拆除时,在2#墩﹑3#墩单侧搭设5组临时贝雷片,待上跨C匝道段2#-3#拆除完毕后拆除。机械计划投入2台480凿岩机。
 
        图4-4 第三阶段拆除示意图
        五、逐跨拆除施工工艺
        整桥共计8跨一联,我项目部拟从3#﹑5#墩墩柱单侧进行切割梁体,分离出3段即5#-8#墩,3#-5#墩和0#-3#墩。随后再根据三个阶段进行对称破除。
 
        图5-1 箱梁切割分段示意图
        1.搭设临时支撑
        搭设临时支撑前对老桥2#﹑3#和5#墩之间地基进行处理,处理方式挖除表土30cm,采砖渣换填不小于50cm,并浇筑20cmC20混凝土,混凝土顶面保持平整。
 
        图5-2 支架基础硬化示意图
        根据老桥图纸和现场条件踏勘,桥梁5# -8#墩有两侧有较大空间,机械站位两侧对称拆除;桥梁3#-5#墩高速与老天保桥较近,占位空间较小,无法同时满足大型480机械站位要求,综合考虑大型480凿岩机放置背离老天保桥一侧,小型210放置靠近天保桥一侧;桥梁0# -3#墩空间满足要求,机械对侧站位拆除。
        全桥共计搭设贝雷片5部分:2—1,3-1,3-2,5-1,5-2。其中2-1为贝雷支架45型,其余均为为90型。
        对于跨绕城段3#-5#墩共计32米的箱梁需快速拆除的,考虑到快速抢通的需要,故在封闭时间内不再做支架设置,由两侧过渡墩搭设贝雷支架起防止失稳定作用。根据LY支线上跨桥老桥竣工图纸,箱梁底板宽度为6.0米,故5#墩两侧采用每个贝雷片支架有2*5个标准片组成,组成的贝雷支架尺寸为6m*3.6m*1.5m(长*宽*高),层数根据根据箱梁高度进行搭设,平均层数3层(3#墩两侧4组贝雷片),对于支架顶不满足标准高度1.5m时,采用I20工字钢与方木进行调节,保证梁底与支架贴合。
 
        图5-3 LY支线上跨桥临时支架布置图
        为保证支架与梁底贴合,通过现场工字钢及方木调节,具体示意图如下:
 
        图5-4 贝雷片临时支架梁底搭设图
        表5-1 支架组装高度
        由于桥墩较高,为了确保支撑系统的稳定性,上下层贝类支架之间采用跨式螺栓进行连接,连接方式如下图。
        2.护栏及翼缘板拆除
        为加快桥梁拆除进度,首先进行桥面铺装层的拆除,用凿岩机分点松动,后用挖掘机打堆、装车运出。
        行道护栏采用凿岩机停置桥面上,炮头向桥梁中心方向分层凿除,并用氧气将连接翼缘板的钢筋割除。
        翼缘板拆除同样让凿岩机停在桥上,由外向内将混凝土破碎至翼缘板根部停止,形成一条切口,用另一台挖掘机配合从翼缘板的外侧向内勾住,凿岩机破碎翼缘板根部,破碎结束后由于翼缘板的上下钢筋连接和挖掘机的配合工作,翼缘板不会造成下落情况,用氧气切除两侧连接钢筋,两台机械同时把翼缘板翻向桥上面,然后切割翼缘板与箱梁连接的钢筋,把拆除后的翼缘板运至安全破碎区进行破碎。在凿除区域中有专人值班,严禁非相关工人员和车辆及机械进入作业区。
 
        图5-5 翼缘板拆除完成示意图
        3.箱体切割分离
        为保证施工时桥梁处于稳定状态,因此施工前对桥梁进行切割分离,分为三个部分,三个部分均由贝雷支架支撑,有效保证凿岩机在施工时对桥梁的扰动性。切割前对切割部分进行施工放样,并采用吊车配合钢丝绳固定,防止快速切割导致切割部分失稳。
        4.箱梁腹板拆除
        本箱梁为单箱双室结构,故对箱梁腹板拆除时,应分两步进行拆除,首先拆除两侧边腹板、再拆除中腹板。破碎机械置于箱梁的两侧,每跨每侧设置四台破碎机进行腹板破碎,严格控制破碎速率,确保整个箱梁均匀御载。防止拆除过程中箱体坍塌。凿除过程中,观察梁体振动产生的影响。
 
        图5-6 边腹板拆除完成示意图
        5.墩柱拆除
        下部结构采用破碎机进行逐段拆除,每段长度控制在4米左右,依次从高至低进行破碎拆除。
        6.场地清理
        梁体凿除进行中,所产生的混凝土废渣及时用挖机配合自卸汽车进行装车转运至合适的地点。废渣堆放区的选择满足环境保护的要求。
        六、结束语
        跨高速公路连续梁智慧拆除施工,在施工过程中要严格遵守箱体断面破碎顺序,确保封闭时间内高效、安全的拆除;其次通过临时支架的搭设,一定程度上确保了单跨连续梁的自身稳定,确保了施工安全。机械拆除过程中应做好扬尘管控,组织好机械配置,提高施工效率。
        参考文献:
        [1]《跨高速公路连续梁旧桥拆除施工技术》(铁道建筑技术,2014年第S1期77-78,81,赵东海);
        [2]《跨高速公路连续梁桥拆除施工方案研究》(世界桥梁,2020,48(01),朱超宇,袁鑫,田石柱)
        作者简介:
        李海超(1988年7月),男,汉族,河北衡水人,工程师
投稿 打印文章 转寄朋友 留言编辑 收藏文章
  期刊推荐
1/1
转寄给朋友
朋友的昵称:
朋友的邮件地址:
您的昵称:
您的邮件地址:
邮件主题:
推荐理由:

写信给编辑
标题:
内容:
您的昵称:
您的邮件地址: