程鹏飞 龚小雪 李丹东 梁勋萍
国网金华供电公司 321000
摘要:消防室作为变电站室外集中存放消防器材的场所,具有极其重要的作用。但是传统消防室普遍存在着设计以及材料选取等相关问题,再加上消防器材检查依赖人工进行,对消防系统的日常维护造成了极大的挑战。提出设计一种新型消防室,能够通过机构优化设计、材料合理选取以及与站内机器人联动来解决上述问题。通过在国网金华供电公司下辖220kV宾王变进行现场应用,最后得出该消防室能够在保证正确率的同时有效减少运维人员工作量,大大降低维护成本。
关键词:消防室 机器人
Design Of A New Type Of Substation Fire Room
Cheng Pengfei Gong Xiaoxue Li Dandong Liang Xunping
State Grid Jinhua power supply company 321000
Abstract:The fire room is a place for centralized storage of fire fighting equipment outside the substation,it plays an extremely important role.However,there are many problems in the design and material selection of the traditional fire room,in addition,fire equipment inspection relies on manual work,it is a great challenge to the routine maintenance of fire protection system.A new type of fire room is designed,the above problems can be solved through mechanism optimization design,reasonable material selection and linkage with robots in the station.Through the field application in 220kV Binwang substation of State Grid Jinhua power supply company,finally, it is concluded that the fire room can effectively reduce the workload of operation and maintenance personnel while ensuring the accuracy,greatly reduce maintenance costs.
Keyword: fire room; robot
前言:
2017 年,国务院印发了《消防安全责任制实施办法》,明确了企业是消防安全的责任主体,电网企业作为国家能源行业的重要骨干企业,消防安全显得尤为重要。消防室作为变电站集中存放消防器材的场所,里面存放有相当数量的消防器材,是变电站消防建设的重要组成部分。
国网金华供电公司群众性创新项目(5211JH21001H)
目前大多变电站普遍存在着室外消防室结构设计不合理、材料选择不当以及检查形式传统,依靠人工巡视加填写检查卡,效率低下等问题。这些问题对消防系统日常维护造成了极大的挑战,也是变电站安全运行的不稳定风险隐患。本文针对这些问题,计划设计一种变电站新型消防室,该消防室能够与变电站现有的巡视机器人进行交互实现机器人替代人工巡检减少运维人员工作量,同时有效改善消防设施存放环境提高消防器材使用寿命,为变电站消防维护提质增效。
一、新型消防室结构设计
目前变电站传统消防室主要为钢筋混凝土结构,由于处于室外,极易受环境影响最终加剧内部消防器材的老化,并且消防室由两部分组成,分别用于存放消防器材及消防沙,本文通过在220kV宾王变进行实地调研,对消防室尺寸以及内部集成器材数量进行综合分析,得出新型消防室整体结构设计图。
.png)
图中消防室整体为不锈钢结构,能够有效降低外部环境对室内消防器材的影响,单侧为钢化玻璃结构,机器人能够透过玻璃对内部消防器材进行巡视检查,实现以机代人的目的。本文通过进行合理构想,搭建了三维结构图,如下所示:
.png)
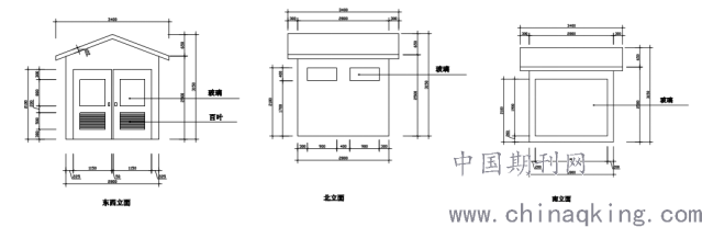
并根据模型及尺寸绘制了三视图:
.png)
二、机器人巡视方案设计
本文计划采用机器人来替代人工巡视室外消防室,机器人通过对玻璃内的消防器材采集照片。通过机器人专用网络上传至变电站后台,并通过计算机识别软件对消防器材定制点位状态进行可靠识别,定制点位的选取符合消防器材经常出现问题的位置,最终综合所有点位信息,得出消防器材当前状态,并生成检查记录。以4kg灭火器为例,如下图所示:
.png)
只有各点正常才会最终判断消防器材状态正常。
三、方案验证
在新型消防室研制成功后,通过在220kV宾王变进行试点使用,并对比使用前后室外消防器材巡视耗时。本文通过随机选择一个经验丰富的运维人员,按照合格的巡视检查流程,对宾王变室外消防器材进行检查,并模拟十次,通过对比前后的耗时,比较分析得出新型消防室的使用效果。如下图所示。
.png)
通过上图可知,新型消防室的使用能够有效降低运维人员巡视时间,新型消防室使用之前,变电站室外传统消防室经常会因为各种外部环境的影响,导致消防器材需要经常进行更换,小组通过对比新型消防室投入前后一年内更换器材数量。结果如下:
.png)
对比得出新型消防室的使用一定程度上能够延长消防器材使用寿命。
四、结论
本文通过对变电站进行实地调查,发现变电站消防器材维护时间过长,人工填写检查卡巡视耗时耗力,另外各所均配置有运检机器人,未能有效利用以及室外消防室易受户外环境的影响。为解决这些问题。设计一种变电站新型消防室,能够实现机器人代替人工巡视室外消防器材。在设计制造完成后,通过进行实地测试实验,消防室内环境得到了极大改善,另外机器人也完全能够实现消防器材巡视,并且准确率极高。大大节约了人力及时间的浪费,也适应了当前“以机代人”的发展方向,符合发展趋势。
参考文献:
[1]李海生,覃广斌,吕立帆,潘剑锋.智能巡检机器人在变电站中的应用分析[J].电子世界,2021(02):49-50.
[2]杨学志,巩潇,李梦玮,梁学修.变电站巡检机器人替代人工测评方案[J].机器人产业,2020(06):36-42.
[3]赵俊伟,秦佳鸣,谢杨.变电站智能巡检机器人在运维工作中的应用[J].电力与能源,2020,41(05):579-581.
[4]孙大庆,杨墨,韩磊,等.变电站巡检机器人电源系统:中国,202167880[P].2012-03-14.
[5]林英,李占彬.变电站智能巡检机器人在运维工作中的应用[J].电子技术与软件工程,2018(15):59.
[6]陈晨,黄铮.智能巡检机器人在变电站日常运维及缺陷跟踪方面的应用[J].科技风,2018(18):3.
[7] 朱兴柯,李斌,李长生.智能巡检机器人在变电站中的应用[J].云南电力技术,2012,40(5):55-57.