王磊
济南市市政工程设计研究院(集团)有限责任公司
摘 要:管型混凝土桥墩力学性能优异,目前已在多个项目上展开研究应用,通过对比直径1.4m现浇C30实心桥墩和1.2m管型预制桥墩,预制桥墩单价节约15%以上,体现出预制桥墩经济性上的优势,同时工厂化、标准化的生产对推动桥梁工业化建造技术,绿色环保施工起着重要的作用。预制桥墩按照不需要搭设支架及脚手架,不影响既有交通,对于交通导改起着积极的作用。
关键词:工业化建造;管型预制桥墩;设计;制造
0 引言
本文所述管型预制桥墩是指采用离心工艺成型,工厂预制的管型钢筋混凝土桥墩,混凝土强度等级C70及以上的空心桥墩。
1 管型预制桥墩设计
案例一:济祁高速淮河特大桥项目
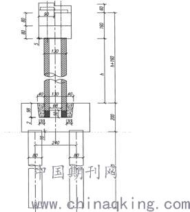
本项目引桥下部桩基采用直径0.6m的PHC管桩,桥墩为直径1.2m的管型预制桥墩,上部结构为35m钢板组合梁桥,桥墩与承台连接方式为杯口式连接,如图1所示。
图1 杯口式连接设计图
本项目预制桥墩壁厚0.25m,内径0.7m,混凝土强度等级为C70,双层钢筋笼设计,外钢筋笼布置18根Φ20的钢筋,内钢筋笼布置9根Φ12 的钢筋,如图2所示。
.jpg)
图2 Φ1.2m预制桥墩配筋示意图
案例二:合安高速中派河特大桥项目
本项目引桥采用全装配式设计理念,桩基、墩柱、盖梁和梁板均采用集中预制现场安装的方式进行。下部桩基础采用直径0.8m的PHC管桩,桥墩采用直径1.3m的管型预制桥墩,上部结构为30m装配式预应力混凝土箱梁,桥墩与承台连接方式为杯口式连接,如图3所示。
.jpg)
图3 插槽式连接设计图
本项目预制桥墩壁厚0.3m,内径0.7m,混凝土强度等级为C70,双层钢筋笼设计,外钢筋笼布置24根Φ25的钢筋,内钢筋笼布置12根Φ12 的钢筋,如图4所示。
.jpg)
图4 Φ1.3m预制桥墩配筋示意图
管型预制桥墩由于自身强度高,在承受相同上部荷载的情况下,管型预制桥墩直径比现浇C30桥墩直径小,管型预制桥墩等效换算成C30现浇实心墩的直径见表1。
表1 等效直径换算表
.jpg)
以济祁高速淮河特大桥项目为例,按照等效承载能力换算,现浇实心墩等效直径为1.4m,预制墩具有明显的材料优势,造价降低15%以上,单价对比见表2。
表2 桥墩单价对比表
.jpg)
由表2可以看出,在同等使用功能情况下,采用预制桥墩比现浇桥墩价格节约。
2 管型预制桥墩制造
结合相关工程前期试验研究,采用高性能混凝土技术,通过双免养护工艺实现桥墩的生产,出池后进行水养、喷淋养护。保证构件在养护过程,特别是在桥墩前期养护关键期,混凝土养生过程中水化、硬化充分,防止表面龟裂、深层裂纹的产生。
2.1主要材料
1水泥
为保证大直径墩的产品质量,水泥宜采用52.5等级的水泥,宜采用硅酸盐水泥、普通硅酸盐水泥,其质量要求应符合GB175的规定;水泥中C3A、C2S、C2S等成分的含量稳定,防止不合理的组分对水泥早期强度、凝结时间等影响,造成和易性差、强度发展不利、粘皮等质量问题。
2 细骨料
细骨料宜采用洁净的天然硬质中粗砂或人工砂,其质量应符合GB/T14684的有关规定。其中:天然砂细度模数宜为2.5~3.2,人工砂细度模数可为2.5~3.5;颗粒级配应符合GB/T14684-2001中表1的规定;砂经筛选后,含泥量不大于1%;氯离子含量不大于0.01%;硫化物及硫酸盐含量不大于0.5%。
3 粗骨料
粗骨料应采用碎石或破碎的卵石,最大粒径不大于25mm,且不超过钢筋净距的3/4。颗粒级配应符合GB/T14685中表1的规定。其中:碎石母材强度不小于120MPa;碎石经筛选后含泥量不大于0.5%。压碎指标不大于10%;针状、片状颗粒含量不大于5%。
4 钢筋
纵向普通钢筋宜采用HPB300、HRB400钢筋,钢筋应符合《钢筋混凝土用热轧带肋钢筋》GB1499.2的规定。
螺旋筋宜采用低碳钢热轧圆盘条、混凝土用低碳冷拔钢丝,其质量应符合国家标准《低碳钢热轧圆盘条》GB/T701, 《混凝土用冷拔低碳钢丝》JC/T540规定。
2.2钢筋骨架
1 钢筋基本要求
直径≥12mm采用HRB400钢筋,直径<12mm采用HPB300钢筋,主筋采用Ⅲ级钢筋;加强箍筋采用Ⅲ级钢筋,直径≥16mm(目的保证整体钢筋骨架刚性);架立筋采用Ⅲ级钢筋,直径为12mm。
2 骨架制作基本要求
(1)笼筋分内外两层,外笼、内笼Dp值应按照设计要求执行;
(2)架立筋两端弯钩长度根据设计确定、角度90°,弯钩朝同一方向;由墩柱底部起,每隔一米设一层;
2.3 配料、布料
1 混凝土配比设计
高耐久性混凝土应具有较高的抗压强度、抗弯拉强度、抗劈裂强度;具有良好的工作性能,满足布料、离心等工艺要求;具有较好耐久性,满足所处使用环境的耐久性要求;
2 布料
由于掺加晶核等材料,混凝土时间过长易失去塑性,布料、生产应及时顺畅,在具有良好和易性状态下及时离心,保证产品质量;宜采用2台搅拌机同时打料打料,两台布料小车同时布料,利用有效措施,缩短布料时间,保证离心效果;新拌砼料出搅拌机至离心时间不宜大于45min;平车废料等严禁直接入模内使用,防止表面污染及影响质量,不得随意加水。
2.4 离心成型
由于离心桥墩墩壁较厚,根据试验分析,高速阶段的设计比较关键,速度不宜过低、高速时间应适当延长,有利于厚壁桥墩的离心成型。高速离心速度低则墩身不密实、离心速度过高则分层现象加剧,应根混凝土状态合理设计高速速度及时间,并根据试验确定。
2.5 桥墩养护
为解决大尺寸高温养护带来的裂纹、内部结构缺陷等质量问题,桥墩经过大量实验,效果比较好的养护方式应为水养,且离心结束后入养护池应及时的进行湿度、温度自动控制。在车间存放、转运时间较长时,墩身表面应及时覆盖保护膜,防止失水开裂,特别是在出池车间内存放、转运至堆放场地时注意。
1 离心结束后的养护池养护
养护工艺:养护池内应采取保湿、保温养护。温度一般35℃±5℃,湿度≥95%;恒温、恒湿时间:10h。
2 出池脱模后的水养、喷淋养护
脱模后水养一般7天,进入存放场地注意喷淋、保护。
3养护工艺说明
静停养护:桥墩离心完成后,即可进入养护池,保持池内温度30℃~40℃,湿度≥95%,养护总时间达10h即可拆模。
外露钢筋防腐:待外露钢筋冷却至室温,用水泥浆均匀涂刷一层,待水泥浆干燥后再涂刷第二层;螺孔部位先用胶塞堵住,再用水泥浆将胶塞与螺孔边缘涂刷两层水泥浆。
水池养护:待钢筋防腐完成后,将桥墩吊入水池,墩身入池温度与池内水温相差不得超过15℃。水池养护的水质必须是洁净的自来水或江水,严禁使用锅炉水。水池的水位应高于桥墩顶端5cm以上,并及时补充和更换,以保持水质清洁。
2.6桥墩堆放及运输
1 堆放场地必须坚实平整,应有排水措施。
2 场地许可时宜单层堆放,需叠层堆放时,不宜超过2层。
3 构件吊装
4 运输
3 管型预制桥墩施工
预制桥墩安装前应编制专项施工方案,桥墩采用工厂预制、现场组装、浇筑连接的方案。承台及相关预埋件施工完成后,预制桥墩运至施工现场,吊装底部墩柱节段就位,检测构件定位状态、固定,浇筑杯口混凝土。
4 结语
综上,管型预制桥墩充分发挥了高强混凝土的性能,有效降低墩身结构重量,同时轻盈纤细的桥梁构件便于预制、运输和现场拼装,最大程度发挥桥梁的工业化建造技术。
安徽省交规院设计的济祁高速淮河特大桥、合安高速中派河特大桥、305省道阜南长安至曹集段改建工程设计图纸通过专家评审的结果表明管型预制桥墩的抗压、抗弯和抗剪承载力均满足工程要求。
参考文献
[1]梁智雄.预制钢筋混凝土柱施工方案探讨[J].企业科技与发展,2008,(14).148-150.
[2]朱治宝,刘英.跨海大桥大型预制墩柱的施工技术[J].桥梁建设,2004,(5).50-52.
[3]颜全胜,孔嘉慧,韩大建.金沙洲大桥主桥墩空间应力分析[J].昆明理工大学学报(理工版),2003,(6).113-116.