(1.国家电投集团北京电力有限公司 北京北京 100044;2.国家电投集团山东新能源有限公司 山东济南 250100)
摘要:本文以某风电项目风电机组基础进行设计分析,阐述了在平原地貌风电场土层地质条件下风机基础形式设计的选择、桩基础形式的方案比选、桩基础方案经济性分析、施工技术质量及可靠性分析等内容,并探讨PHC预制管桩基础设计的建议,对项目的快速推进具有重要意义。
关键词:灌注桩基础、PHC预制管桩基础、方案比选、经济性分析、基础设计
某风电工程项目属于平原地貌风电场,场址海拔高度20~26m。风机塔架属于高耸建筑,作为风机塔架的基础,其所承受上部的水平力和倾覆力矩较大,基础形式通常采用扩展基础或桩基础,具体基础形式的选用应根据建设场地地基条件确定。
一、风机基础形式设计的选择
本项目地层均为第四系覆盖层,地基基础埋深一般为3.0m左右,①1粉质黏土层、①2粉土层、①3层粉砂承载力较低,层厚不均,层位分部不稳定,工程性能较差,不宜作为地基持力层,其他各层埋深较大,且①2粉土层、①3粉砂层、②3粉砂层、④1粉砂层在基本烈度为VII度时会产生液化现象,根据目前的风机荷载情况,需采用桩基础形式。
二、桩基础形式的方案比选
根据本场区的地质条件,本项目桩基础推荐采用钢筋混凝土灌注桩基础与PHC预制桩基础比选。
方案一:钢筋混凝土灌注桩基础
根据风机厂家提供的荷载资料及地勘资料,拟定风机基础为现浇钢筋混凝土圆形基础承台,下部设置34根(外圈22根,中圈12根)φ800钢筋混凝土灌注桩。基础承台采用C40钢筋混凝土结构,基础底部直径19.6m,基础高度3.5m。钢筋混凝土灌注桩直径800mm,混凝土强度等级为C35,平均桩长30m。
.png)
钢筋混凝土灌注桩基础图
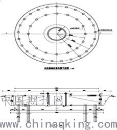
方案二:PHC预制管桩基础
根据风机厂家提供的荷载资料及地勘资料,拟定风机基础为现浇钢筋混凝土圆形基础承台,下部设置48根(外圈28根,内圈20根)PHC600AB110预应力混凝土管桩,直径为600mm,壁厚为110mm。桩身混凝土强度等级为C80,平均桩长30m。
.png)
PHC预制管桩基础图
三、桩基础方案经济性分析
两种桩基础方案的经济性分析比较见下表。
.png)
单台风机基础经济性对比表
从上表可以看出,钢筋混凝土灌注桩基础为175万/台,PHC预制管桩基础为145万/台。方案二在总造价方面有优势。
四、施工技术、施工质量及可靠性分析
钢筋混凝土灌注桩采用现场施工,工艺成熟,桩质量可靠,现场施工进度一般。PHC预制管桩是由工厂预制加工,桩体自身强度较高,桩体质量有保证,现场施工进度快。在现场施工过程中,可通过对桩长及最终贯入度的双控来保证单桩承载能力。但在打桩过程中,在穿透密实黏土层时,易出现桩头混凝土破碎及断桩等现象,桩质量不易保证。项目施工现场距周边村庄较近,现场PHC桩施工噪音较大,易造成施工扰民,可能增加施工过程中的社会风险因素。
五、风机桩基础设计分析
1.风机基础设计
根据风机厂家提供的荷载资料及地勘资料,拟定风机基础为现浇钢筋混凝土圆形基础承台,下部设置48根(外圈28根,内圈20根)PHC600AB110预应力混凝土管桩,直径为600mm,壁厚为110mm。桩身混凝土强度等级为C80,平均桩长为30m。对于砂层出现较早且较厚,对应的机位需要进行引孔。承台采用圆形钢筋混凝土承台,承台直径20.0m,承台总高度3.4m,埋深3.2m。承台混凝土强度等级为C40,下设200mmC20素混凝土垫层。
2. 耐久性设计
根据场地条件:场区地下水对混凝土结构具有弱腐蚀性,对钢筋混凝土结构中钢筋在长期浸水条件下具微腐蚀性,在干湿交替条件下具中腐蚀性。场区土对混凝土结构具弱腐蚀性,对钢筋混凝土中钢筋具弱腐蚀性。
承台耐久性设计:基础表面防护采用沥青冷底子油两遍,沥青胶泥涂层,厚度≥300μm。
PHC桩耐久性设计:混凝土中掺入钢筋阻锈剂。
3. 温控及养护设计
风机基础混凝土施工,混凝土浇筑体表面与大气温差不大于20℃,在浇筑温度的基础上最大温升值小于50℃且各测点的温度极差小于25℃。混凝土浇筑后表面应立即用防水膜保持湿润,防止雨水、温度巨变,养护时间不少于14天。
六、结论
钢筋混凝土灌注桩采用现场施工,工艺成熟,桩质量可靠,现场施工进度一般,工程工程造价高。PHC预制管桩是由工厂预制加工,桩体质量有保证,现场施工进度快,工程造价低,且设计较成熟,但现场PHC桩施工噪音较大,可能增加施工过程中的社会风险因素。综合以上各点考虑,本项目可采用施工进度快且工程造价低的PHC预制管桩基础。
参考文献:
[1]张军.灌注桩基工程机械冲击成孔施工工艺[J].石家庄铁路职业技术学院学报,2009(4)
[2]沈华鑫,李家辉.持力层软化对预应力管桩承载力的影响[J].广东土木与建筑,2003(6)
[3]徐天平,李素华.泥岩持力层的管桩承载力试验研究[J].岩石力学与工程学报,2004(2)
[4]张跃川.桩基工程施工方案编制[J].工程建设与设计,2009(12)